Огнестойкие листы ACP, сплошной цвет, 4,0 мм, алюминиевая сэндвич-панель - 1220 мм * 2440 мм
Алюминиевая пластиковая панель, сочетающая в себе лучшие качества металлических и неметаллических компонентов, сочетает в себе прочность металлического алюминия и универсальность неметаллического полиэтиленового пластика.Он смягчает недостатки своих основных материалов и обладает множеством замечательных особенностей.К ним относятся высокая эстетика, великолепный красочный внешний вид, устойчивость к атмосферным воздействиям, коррозии и ударам, защита от пожара и влаги, звуко- и теплоизоляция, а также сейсмостойкость.Он также может похвастаться легкостью, простотой обработки и простотой транспортировки и монтажа.
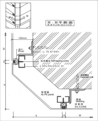
Производительность обработки продукта
Алюминиевые композитные панели, производимые нашей компанией, можно обрабатывать и формовать с использованием обычных деревообрабатывающих и металлообрабатывающих инструментов, включая резку, распиловку, фрезерование, штамповку, прессование, фальцовку и гибку.Это позволяет точно выполнять различные формы, необходимые для архитектурного декора, особенно такие формы, как дуги, контраги, углы малого радиуса, а также внутренние и внешние углы.Этот уровень универсальности не имеет себе равных среди других отделочных материалов.
1. Резка: Режущий инструмент, электрическая пила, ручная пила, кольцевая пила и т. д.
2. Фрезерование пазов: после обработки на электрическом портативном фрезерном станке изделие можно вручную согнуть в различные виды многогранников.
3. Удаление углов: после обработки перфоратором и машиной для удаления углов его можно объединить в багажник.
4. Сварка: изделие можно сваривать с помощью пластиковых сварочных стержней и сварочных аппаратов с горячим ветром.
5. Гибка углов: после обработки на пазофрезерном станке изделие можно сгибать в различные углы.
6. Гибка: Изделие можно сгибать с помощью трехточечных или трехвалковых машин.
7. Печать: На изделие можно напечатать трафаретную печать.
8. Сборка: Заклепка, гвоздь, саморез и т. д.
9. Перфорация: продукт можно перфорировать открытым перфоратором.
Особенности продукта
1. Легкий вес: имеет очень высокое соотношение прочности и веса.При одинаковой жесткости (Ej) вес единицы площади алюминиевых композитных панелей составляет всего около 60% от веса алюминиевых пластин и 30% стальных пластин.
2. Сильная адгезия: имеет высокую прочность на отслаивание на 180°.После длительного использования алюминиевая пластина и пластиковый сердечник не отслаиваются автоматически.
3. Устойчивость к погодным условиям: при длительном использовании на открытом воздухе цвет и блеск практически не изменяются, покрытие не отваливается, а общий срок службы составляет более двадцати лет.
4. Коррозионная стойкость: Поверхностное покрытие обладает прочной адгезией и может противостоять коррозии кислоты (10% H2S04), щелочи (10% NaOH) и соляного тумана;Покрытие из фторуглеродной смолы ПВДФ особенно прочно.
5. Устойчивость к давлению ветра: характеристики достигают национального уровня А, отвечая требованиям устойчивости к давлению ветра для отделки наружных стен высотных зданий.
6. Огнестойкость: внутренний слой выполнен из нетоксичного полиэтилена, а две его стороны представляют собой тонкие негорючие алюминиевые пластины.
Профиль компании
С 1999 года мы являемся пионерами в производстве алюминиевых композитных панелей, используя передовые технологии производства.Наши панели изменили современные тенденции декора благодаря своим исключительным свойствам.Мы были первыми, кто получил сертификат ISO 9001:2008 и получил множество наград.Наш бренд Richly Bound означает наш разнообразный ассортимент превосходной продукции.
Схема процесса установки продукта



