Будочка забора ламинарной подачи отрицательного давления СУС304 для оборудования чистой комнаты сырья
ПОДГОНЯННЫЙ ДИЗАЙН ДОСТУПЕН
Характеристики продукта:
Подача отрицательного давления ламинарная
Модульное проектирование ГМП с уменьшенными соединениями и швами.
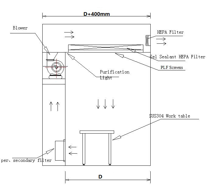
конфигурация 5 различная фильтров доступная использующ сочетание из Г4, Ф8.Х13, Х14
и экраны ПЛФ.
Воздушный фильтр сеалант ХЭПА геля (99.995%@0.3ум) для высокого ряда очищения
Ряд очищения: Класс100 /ISO5
Скорость воздуха: 0.45м/с+_20%
Протекать выхлопного воздуха 10% (регулируемый)
Введение:
Распределяя будочка обеспечивает оператора, процесса и предохранения от продукта путем использовать фильтрованную ХЭПА однонаправленную ламинарную будочку воздушных потоков для того чтобы поддерживать окружающую среду ИСО5 в покое в пределах рабочой зоны и захватывать партикулатес во время открытых регулируя процессов.
Параметр продуктов:
| МОДЕЛЬ | КЭЛ-ДБ1000 | КЭЛ-ДБ1500 | КЭЛ-ДБ2000 |
|
Внешний размер (мм) (В*Д*Х) |
1200кс1500кс2400мм | 1500кс1700кс2400мм | 2000кс1800кс2400мм |
|
Рабочая зона (мм) (В*Д*Х) |
1100кс1200кс2000мм | 1400кс1200кс2000мм | 1900кс1300кс2000мм |
| Ряд очищения | Класс 100 (ИСО5) | ||
| Скорость воздуха | 0.45м/с +_20% | ||
|
Материал (Вариант) |
1: Нержавеющая сталь 201/304/316 полноты. (Т=1.2/1.5мм) 2: Внешняя и внутренняя сторона стальная с покрытой силой. (Т=1.2/1.5мм) |
||
| Система управления |
1: Скорость воздуха согласно управлению преобразователя частоты. 2: Воздушный фильтр высокой эффективности ХЭПА Сеалант геля для высокого ряда очищения 3: Обнаружение скорости ветра, температура постоянного и постоянн влажность Детектор согласно запросу клиента устанавливает 4: Порт и манометр перепада давления ДОП/ПАО для ХЭПА /secondary фильтруют так, что напомнит о вас изменение воздушный фильтр во времени 5: различная конфигурация фильтра 5 доступная использующ сочетание из Г4, Ф8.Х13, Х14 и экраны ПЛФ. 6; Модульное проектирование ГМП с уменьшенными соединениями и швами. 7: Занавесы прокладки ПВК доступные 8; Вентилятор тома воздуха энергии эффективный высокий для того чтобы уменьшить производственные затраты, |
||
| Уровень шума (дБ) | <65db> | ||
| Шаг фильтра | Шаг 3 | ||
| Фильтр ХЭПА | сеалант геля 99,995% @ 0.3ум мини--воздушный фильтр плеац ХЭПА | ||
| Вторичный фильтр | Воздушный фильтр кармана Ф8 | ||
| эффективность Пре-фильтра | Г4 З-линия воздушный фильтр панели | ||
| Электропитание | 380В/50ХЗ ИЛИ 220В/50ХЗ | ||
| Материал упаковки | Упаковка стандартного экспорта поли деревянная (материал фумиганта свободный) | ||
Применение:
Распределяя будочка конструирована таким что до различные конфигурации ее можно приложить но не ограничиться к полю следования: еда, электронный, робототехнический, нутрасеутикал, животный, косметический, биологический, и фармацевтический.
Притяжка:


Наши обслуживания
Испытание фабрики (все наборы вы приказали):
Все из оборудования индивидуально фабрика испытанная для безопасности и представления в соответствии с международными стандартами.
Каждый блок погружен с документацией конспектируя предпринятые тесты и результаты блока индивидуальные для каждого блока.
Тест фабрики включает:
--испытание возникновения
--функциональный тест и визуальный контроль
--электрические тесты безопасности
--испытание скорости воздуха
--испытание шума
Гарантия:
Наше оборудование гарантия на 2 лет исключая потребляемых частей и аксессуаров.
Все оборудование погружено с всесторонней пользой ручной завершает с отчетом документируя все методики проверки.
Дополнительный документ ИО/ОК/ГМП доступен по требованию.