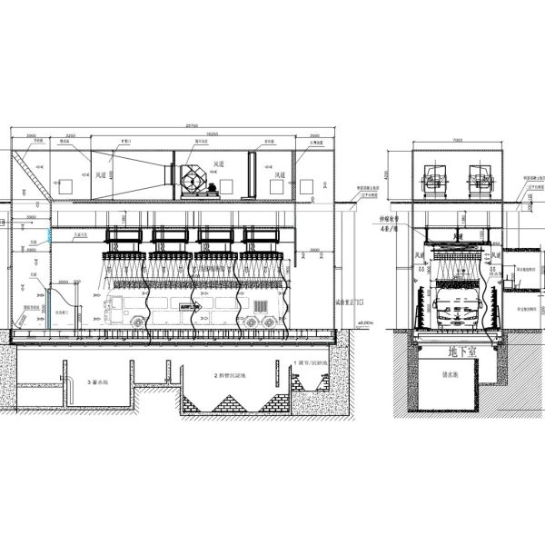
Лаборатория симуляции искусственного климата для больших кораблей
диапазон температур : -20-70℃
размеры внутренние испытательного участка:
25.5m (w) x 7m (d) x 8m (h)
обматывает скорость дуя прибора: 0~20m/s
Spout размер: 2m (w) x 2m (h)
том воздуха обеспечивая циркуляцию: 300000m3/h
толщина льда : 0~75mm
время замерзая: ≤100h
интенсивность снежностей : 1~150mm/h
время снежностей : ≥3h
зона снежностей :
14.1m (l) x3.4m (w) x3.6m (h)

