Всемирно известная торговая марка Горизонтальная нагрузка Жесткая натяжная машина 500 1+6+12+18
Особенности и применение
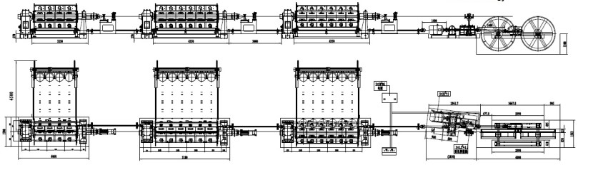
Эта машина в основном используется для гибких кабелей и большой длины голый алюминий, голый медный провод и стальной алюминиевой проволоки, алюминиевого сплава проволоки и сектора проводников,Круговая проводниковая зацепка, тяга и прессование. Оборудование использует 36-ступенчатую тяговую коробку передач, двойную активную и двойную тяговую установку. Разделяющее колесо использует естественное расщепление, чтобы избежать стирки во время застрявания.Напряжение оборудования регулируется пневматическим напряжением, который обеспечивает равномерное напряжение полных и пустых катушек, и он оснащен автоматическим устройством остановки с уникальной функцией для полного разрыва провода и остановки разрыва провода.Прямое управление на каждый диск, когда линия остановится, хост сразу же остановится автоматически.
Гидравлическая централизованная автоматическая загрузкаиразгрузкаустройство
Концентрируя катушки погрузки и разгрузки, принятие гидравлической подъемной тележки может завершить весь процесс поворота, ходьбы и монтажа поочередно.Операция удобная и надежная, а эффективность монтажа стабильна, быстрая и эффективная.
Основные технические параметры
|
2.1 |
Диаметр одной проволоки
|
Медь |
1.35 ~ 5.0 мм |
|
|
AL |
10,8 ~ 5,0 мм |
|||
|
Изолированное ядро |
12 мм |
|||
|
2.2 |
Скорость вращения клетки |
37 ~ 88 р/мин |
||
|
2.3 |
Диапазон скорости тяговой линии |
30,67-27,2 м/мин |
||
|
2.4 |
Диапазон откида проволоки |
42 ~ 732 мм |
||
|
2.5 |
Диапазон скоростей вращения ленточной головки |
188-419 р/мин |
||
|
2.6 |
Диапазон толщины ленты |
8.7 ~ 144,3 мм |
||
|
2.7 |
[размер катушки в клетке |
500 PND(Ø500 разØ125×375) |
||
|
2.8 |
Размер поглощающей катушки |
PN2500 |
||
|
2.9 |
Основная мощность двигателя |
N=45 кВт(Кондиционер) |
||
|
2.10 |
Приемный крутящий момент двигателя |
M=60N·m |
||
|
2.11 |
Средняя высота машины |
1000 мм |
||
