Машина чертежа металла мотора 160Kw DC RBD большая для низкого круглого провода медного сплава
1. сводка введения
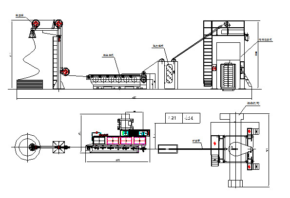
большая машина чертежа 9D для медной проволоки использована для произведения бескислородного или низкая круглая медная проволока и самый большой размер входного сигнала 8mm. Через 9 процессов к непрерывной рисуя медной штанге 8mm к медной проволоке 3mm-2.6mm, используя автоматическую плиту для оплачивать и автоматический свертываться спиралью.
2. Основной параметр
| НЕТ. | Деталь | Параметр |
| 1 | модель | Машина чертежа DL400-9D большая для медной проволоки |
| 2 | dia входа | Φ8mm |
| 3 | dia выхода | Φ3mm~Φ2.6mm |
| 4 | Номера волочильной матрицы | 9 |
| 5 | линейная скорость (максимальная) | 800MPM |
| 6 | структура машины | сварка |
| 7 | Рисуя скорость | 2t/h |
| 8 | Тариф уменьшения зоны m/c | 23,6% |
| 9 | тариф уменьшения тон-оси m/c | 20% |
| 10 | тон-ось | Карбид вольфрама |
| 11 | dia тон-оси (максимальный) | Φ400 |
| 12 | Dia тон-оси скорости починки (mm) | Φ400 |
| 13 | Полная сила | 160kw, мотор DC |
| 14 | свертываясь спиралью сила | мотор частоты AC 11kw /15kw трехфазный |
| 15 | путь контролировать скорость | Управление управлением +frequency AC |
| 16 | путь передачи | Меля шестерня (20CrMnTi изощрило винтовую зубчатую передачу) |
| 17 | Оплатите путь | Накладные расходы |
| 18 | Охлаждая путь | Полно погруженный |
| 19 | напряжение тока обслуживания | Трехфазное 380V (AC), 50Hz |
некоторые вопросы для этой машины, возможно u заинтересованы внутри
1 . Что скорость машины чертежа 9Dbig?
800m/min
2 . Как об охлаждая пути большой рисуя машины?
Полно погруженный
3. какой размер может чертеж?
от 8mm до 3mm/2.6mm

