Алюминиевый Spout шарика Diifsuer воздуха двигателя шарика для большого воздушного потока
Особенность:
материал сплава 1.Aluminum
подача воздуха 2.Long-distance с меньше шума
3.The максимальное вверх или вниз угла регулировки выхода 30 градусов
4. Продукт с ручной регулировкой можно отрегулировать 360 degress. Поверхность с диамантом
угол, может быть раскрыт путем вращая выведенные 450 на горизонтальной направленности
5.Sealed членом уплотнения specail между сферой и внешней рамкой для того чтобы достигнуть самой лучшей закрепленности воздуха,
и держите направление сферы под высокой скоростью воздуха.
6. Выходы можно отрегулировать вручную или электрические приборы для встречи изменения температуры.
7. Смогите добавить клапан воздуха участка или круглое valver воздуха как ваше requriement
8. Spout шарика в крюке вытыхания выхода QP вместе с кольцом и промежуточной трубой проекта которое можно установить в круглый трубопровод
9. Пока финиш порошк-покрытия или отсутствие картина для выбора или цвета вы предпочитаете.
Функции: Вентиляция, рассеивает жару
Применение:
Главным образом использованный в области где A/C выходы далеко далеко от людей двигая вокруг, как аэропорт, спортзал, театр, музей etc. Не свойственно использовать выходы потолка потому что они не могут поставить воздух равномерно к углам и лучшее установить spouts шарика к воздуху стороны поставки.
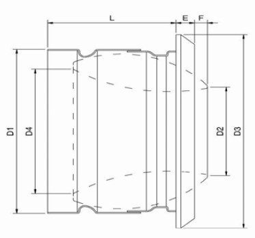
Чертеж отражетеля двигателя шарика:

Размер и спецификация:
| Размер деталя | ¢D1 (шея) | ¢D3 (сторона) | ¢D2 (выход) | ¢D4 (вход) | L (глубина) | E (высота рамки) | Том (m/h) | Ряд (m) |
| 100 | 100 | 149 | 48 | 73 | 76 | 22 | 450 | 30 |
| 125 | 125 | 173 | 62 | 90 | 95 | 24 | 600 | 30 |
| 150 | 150 | 199 | 76 | 108 | 110 | 23 | 800 | 30 |
| 200 | 200 | 265 | 107 | 152 | 138 | 27 | 1094 | 30 |
| 250 | 250 | 310 | 128 | 195 | 175 | 26 | 1368 | 30 |
| 315 | 315 | 378 | 180 | 240 | 200 | 30 | 1680 | 30 |
| 400 | 399 | 468 | 275 | 330 | 227 | 31 | 2710 | 30 |
| 450 | 448 | 523 | 275 | 375 | 220 | 32 | 3200 | 30 |
| 500 | 494 | 583 | 285 | 430 | 250 | 35 | 4000 | 30 |
| 630 | 625 | 700 | 295 | 550 | 320 | 22 | 5000 | 30 |