Медицинский класс 100 Нержавеющая сталь воздушный душ Чистая комната лаборатория
Тип L Однолистные качающиеся двери шириной 800 мм
Большая вершина и большая база
Что такое воздушный душ?
Воздушные душевые - это передкомнаты, которые помогают обеззараживать персонал перед тем, как они войдут в критическую среду.
Дезактивация завершается циклом, в котором воздух продувается через сопла, которые равномерно распределены по стенам помещения.
Этот воздух перемещается через фильтры (обычно HEPA фильтры) и очищает частицы пыли и грязи от тела персонала.
Можно ли производить воздушные души по заказу?
Цзишенгпредлагает как стандартные, так и индивидуальные воздушные души.
Как часто необходимо заменять фильтры HEPA?
Частота замены фильтров HEPA зависит от каждого применения.
Испытать, когда необходимо заменить фильтры, если поток воздуха в воздушных сосудах значительно уменьшится.
Terra Universal provides a “Run Times” feature where personnel can keep track of how much air shower operation time and cycles have elapsed to help in setting up a filter replacement maintenance protocol.
Как вы отправляете воздушные души?
Обычно воздушные души поставляются как предварительно собранные системы.
Тем не менее, вы можете запросить, чтобы ваш заказ был отправлен разобранным для более легкой транспортировки через стандартные двери или более ограниченные пространством зоны доступа.
Особенности:
| Тип продукции | Полный сталь из нержавеющей стали Личная чистая комната Душ воздушный |
| Материал для оболочки | T=1.2 Нержавеющая сталь 304 для наружного и внутреннего корпуса |
| Материал для дверей | Нержавеющая сталь 304 с полузатяжённым стеклом |
| Стержни | Нержавеющая сталь |
| Лист двери | Однолистный |
| Тип двери | Ручные качающиеся двери |
| Взрывоопасный | Двухстороннее дуновение, |
| Система управления | Интеллектуальная панель управления на английском языке с человеческим голосом |
| Замок | Электрическая блокировка |
| Эффективность фильтра HEPA: | H14 |
| Предварительный фильтр | G3 |
| Свет | марки |
| Фотоэлектрический датчик | Бренд OMRON |
| Время душа | 0-99s регулируемый |
| Скорость ветра | 22-25 м/с выше |
| Электрическое питание | AC220V/50HZ/1PH |
| Защита | Выключатель утечки и реле тепловой перегрузки (Защитить людей от утечки электричества) |
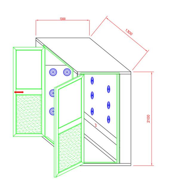
Стандартные размеры и спецификации:
| Продукцияct | Полный сталь из нержавеющей стали Личная чистая комната Душ воздушный |
| Модель | AS S-1300T-1.3 |
| Внешние размеры (мм) | W1300*D1300*H2100MM |
| Внутренние размеры WxHxD(мм) | W800*D1200*H1960MM |
| Двери | 2 комплекта однолистных катушек SS |
| Закрой дверь. | 2 комплекта (Внешний) |
| Закрыть | 2 комплекта электрических замков, взаимосвязанных |
| Подходящее лицо | Один человек |
| Стержни | 6+6+4=16 PCS ((трехстороннее дуновение)) |
| Вентилятор | 2 комплекта |
| Мощность дуновения ((W) | 800 Вт |
| Масса ((kg) | Около.280 |
| Размер фильтра HEPA | 610x610x69 мм |
| HEPA фильтр qty | 2 ПК |
| Эффективность фильтра HEPA | H14 |
| фотоэлектрический датчик | ОРМОН 1 шт. |
| Флуоресцентная лампа | 1х20 Вт |
| Диаметр сопла | 32 мм |
| Время воздушного душа | 0-99 s Регулируемый |
| Скорость ветра | 22-25 м/с |
| Силовое питание | AC220V/50Hz/1Ph |
| Система управления | Панель управления микрокомпьютером с человеческим запросом на выставление счета, электрическая блокировка, автоматическое дуновение фотоэлектрическим датчиком |
Подробности воздушного душа:


Рисунок:


Испытания на заводе:
Все оборудование будет индивидуально проверено на безопасность и производительность в соответствии с международными стандартами перед отправкой.Каждый блок поставляется с документацией, в которой излагаются проведенные испытания и результаты каждого блока..
Испытания перед отправкой:
1Проверка внешнего вида
2. Испытания электробезопасности
3Испытание скорости ветра в воздухе
4. Функциональное тестирование
Гарантия:
Гарантия на наше оборудование составляет 1 год, но не включает расходные части и аксессуары.
Все оборудование поставляется с полным руководством по эксплуатации с отчетом об испытаниях.
Дополнительный документ IO/OQ/GMP доступен по запросу.
Свяжитесь с нашим представителем по продажам для получения конкретных деталей гарантии или запроса документов.
Заменачасти:
1. HEPA фильтр: его следует менять раз в полгода или раз в год.
2Префильтр следует менять раз в 3-6 месяцев.
Почему вы выбралиЦзишенгКомпания?
Профессиональныйобслуживание:
Быстрый ответ в течение 12 часов, если мы получим любой запрос или запрос от клиента
Знаком с оборудованием.
Техник или машинист может отправиться в страны Юго-Восточной Азии для руководства инсоляцией машин. как Таиланд, Вьетнам, Филиппины, Малайзия и так далее.
DВремя доставки:
•Период производства: 15-30 дней
• уведомление о доставке или страховка для вас после отправки товара.
Послепродажная служба:
•Мы уважаем ваши отзывы после получения товара.
• Мы предоставляем 1-летнюю гарантию после прибытия товаров.
• Мы обещаем, что все запасные части будут использоваться в течение всей жизни.
• Мы рассматриваем вашу жалобу в течение 48 часов.
Срок оплаты:
30% предоплата по Т/Т при заказе, остаток платежа до отправки.
Оборудование чистой комнаты, воздушный душ, ФФУ.
У нас есть сертификат CE и ROHS для воздушного душа