Телескопическая линия морских кранов Boom предлагает мощность, доступ и ловкость для самых требовательных морских приложений.Телескопическая серия кранов предлагает разнообразную линейку продуктов для применения в Luxury YachtЭти краны также могут быть дополнительно настроены для использования в этих самых требовательных рабочих условиях.Поговорите с одним из наших партнеров по продажам для решения, полностью соответствующего вашим потребностям.
Все краны в линейке Telescopic Boom предлагают несколько ключевых функций, которые делают их мощными решениями для морской рабочей среды.Расширенный охват бума с ловкостью для точного, безопасная и эффективная обработка материалов. колоссальная подъемная мощность до 1000 тонн и индивидуальные решения, когда требуется больше подъемной мощности.
OUCO предоставляет подробное руководство с чертежами для установки и ввода в эксплуатацию крана, чтобы убедиться, что кран полностью функционирует после прибытия на палубу корабля пользователя.включая морские краныМы уверены, что найдем решение, отвечающее вашим индивидуальным требованиям.OUCO строго соблюдает международные стандарты и правила ISO, ЕС и классовых обществ членов IACS.
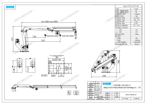
Параметры продукта
| Технические параметры | ||
| 1 | SWL | |
| 2 | Рабочий радиус | 3.5 ~ 20 м |
| 3 | Скорость подъема | ~12 м/мин |
| 4 | Высота подъема | 30 метров |
| 5 | Скорость спуска | ¥0,6 р/мин |
| 6 | Угол спуска | 360° |
| 7 | Первое время лавки | ~ 90S |
| 9 | Второе время лавки | ~ 120S |
| 10 | Условия работы | |
| ПОДПОК | ≤ 5° | |
| TRIM | ≤2° | |
| 11 | Скорость спуска | 0 ≈ 0,7 р/мин |
| 12 | Угол спуска | 360° |
| 13 | Время отпуска | ¥180S |
| 14 | Угол движения | 0°75° |
| 15 | ТЕМПЕРАТУРА проектирования | -40 ′′ 50° |
| 16 | Максимальная скорость ветра | |
| Условия работы | 20 м/с | |
| Состояние парковки | 55 м/с | |
| 17 | Мощность двигателя | |
| Сила | 45 кВт | |
| СТРЕД | 1480 р/мин | |
| КОМПАНИЯ ПОЛЕТНОСТИ | AC380V/50HZ/3P | |
| Класс защиты) | IP56 | |
| КЛАСС ИНСУКАТ | F | |
| Рабочий тип | S1 | |
ГА рисунок

Опаковка

Почему выбирать морских кранов OUCO?
Добро пожаловать на нашу фабрику!
