Кран постамента 1 тонны оффшорный
Легкое обслуживание на всей ситуации;
Сдержанный блок с интегрированным гидравлическим блоком питания.
Failsafe тормозы на всех движениях.
Полностью закрытая и оборудованная кабина оператора с условием воздуха.
Подъем переменной скорости автоматически отрегулирует к самой высокой возможной скорости для соотвествующей нагрузки.
Основание на дизайне много года и опыте изготовления крана и другого подобного оборудования.
Соответствующий для всех видов кораблей и потребления и высокой эффективности низкой мощности.
Сваренное и высокопрочное заграждение коробки для легкого обслуживания.
С много приборов предохранения от безопасности---ограничитель соединения и ограничитель перегрузки, кнопка аварийной остановки.
Спецификация
| 1 |
ТИП КРАНА |
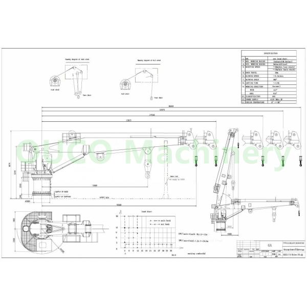
30t @12m & 1.5t@36.6m Радиус Максимальн Working: 36.6m. Кран гидравлического телескопичного заграждения оффшорный |
| 2 | АТТЕСТАЦИЯ | ABS под состоянием моря 2 |
| 3 | КОЛИЧЕСТВО | 1 набор |
| 4 | HEEL/TRIM | 5°/2° |
| 5 | ТЕМПЕРАТУРА ОКРУЖАЮЩЕЙ СРЕДЫ | -9.9°C~+45°C |
| 6 | SWL | 30t @12m & 1.5t@36.6m |
| 7 | МАКС РАБОТАЯ DADIUS | 36.6m |
| 8 | МИНИМАЛЬНОЕ РАБОТАЯ DADIUS | 4m |
| 9 | ПОДНИМАТЬ СКОРОСТЬ |
0~10m/min (главный крюк) ~30m/min (вспомогательный крюк) |
| 10 | ПОДНИМАЯСЬ ВЫСОТА | ~30m |
| 11 | УГОЛ SLEWING | ~360° совсем свободное |
| 12 | СКОРОСТЬ ПРИ ТОРМОЖЕНИИ | 0~0.5r/min |
| 13 | ВРЕМЯ LUFFER | 120s |
| 14 | ВЕС СОБСТВЕННОЙ ЛИЧНОСТИ КРАНА | ~39t (подтверженное в чертеже утверждения) |
| 15 | ЭЛЕКТРОПИТАНИЕ | 415 v, 50Hz,3P |
Характер продукции
Кран серии TB конструирован как электрогидравлический управляемый телескопичный кран заграждения, с интегрированным электрогидравлическим источником питания, поставленным как полный блок готовый для установки к сосудам. Кран оборудован с гидравлическим управляемым воротом, гидравлическим эксплуатируемым luffing и гидравлической системой расширения оператора и гидравлических эксплуатируемой slewing.
Кран установлен со свернутым стальным постаментом для скреплять болтами или сваривать для того чтобы украшать с высотой 1200mm и диаметром постамента зависеть от SWL крана. Стандартный кран TB поставит с платформой оператора. Кабина оператора опционная.
Кран и все они связали компоненты/оборудование будут конструированы в соответствии ко всем ведущим обществам классификации которое по требованию. Кран будет испытан и отрегулированное готовое для установки путем сваривать или скреплять болтами к палубе сосуда. Соединение силы будет предусмотрено для электрической поставки через интегрированные электрические кольца выскальзывания
Общее устройств


Наша аттестация

Наша компания
С летами опыта, группа OUCO морская имеет свои собственные проектную группу и изготовляя фабрику, превосходное европейское управление которое имеет 47 лет опыта на оффшорном деле, которое также обеспечивает обслуживаний после продажи за морем.
Наша производственная линия покрывает морской и оффшорный кран заграждения костяшки, телескопичный кран, жесткий кран заграждения, нештатную стальную структуру, более дружественную к экологическ деятельность и также кран тележки с рядом от 15t к индустрии 150t.Port которая включает краны, хопперы и самосхваты.
Машинное оборудование OUCO может построить любой тип погрузочно-разгрузочного оборудования, согласно нашему собственному дизайну, но также согласно обеспеченным дизайнам.
Мы строим продукты согласно любой аттестации спрошенной клиентом и можем построить их для работать внутри, и под весьма тяжелыми обстоятельствами для работая tempertures - 40C соответственно.
вопросы и ответы
1. Смогите этот тип работа в опасной окружающей среде?
Конечно! Мы можем подгонять для вас, кисловочных доказательства или взрывозащищенный, никакая проблема для этого.
2. Можете вы обеспечить серьезные поднимаясь инструменты?
Конечно, мы можем обеспечить все инструменты подъема как пояс слинга подъема, струбцина подъема, самосхват, магнит или другие экстренныйые выпуски как ваше требование!
3. Как можем мы установить кран?
Наш старший инженер может быть вашей стороной для того чтобы сделать обслуживание и тренировку руководства по установке. Кроме того, наши самые лучшие продажи могут посетить вашу страну.
4. Предохранительное устройство
Перегрузите ограничитель, переключатель предела (поднимаясь и путешествуя), прибор предохранения от блокировки.