50 хопперов кускового материала CBM
Характер продукции
Хоппер Eco циклона, самосхват контролируемый пылью разгружая хоппер экономическое и экологически чувствительное решение выполняя все потребности для эффективного импорта сухих насыпных грузов.
Механизм удаления пыли сделать пыл-содержа воздушный поток вращать, и частицки пыли отделены от воздушного потока маховой силой и поглощены на стене, и после этого частицки пыли падают в собирая сумку силой тяжести. Хоппер Eco циклона специально соответствующий для более большого размера материалов, как деревянные лепешки, который новое веяние для электростанции произвести электричество как экологически чистая энергия.
Применение хоппера значительно улучшало загрузку и эффективность разгружать причала.
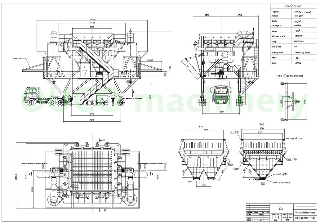
Спецификация
| Емкость | ~500t/h (до крана) |
| Материал | Деревянная лепешка |
| Плотность | 0.7t/m3 |
| Разрядка к | Контейнер |
| Том | ~40m3 |
| Толщина стены | T8*Q345B |
| Подкладка | NM400*T5mm |
| Нагрузка автошины | ~14t |
| Путешествовать скорость | 10m/min (путем буксировать) |
| Вес | ~85t |
| Сила | ~105Kw |
Характеристика продукта
1. Емкость ведра хопперов большая, и большая открытая местность
2. Хопперы большие укладывающ поверхность, и соответственно высокий коэффициент заполнения объема
3. Хопперы сделаны верхнее качественное структурного и высокопрочная сталь, переходники сделана отечественных верхних качественных продучтов
4. Хопперы сохраняют рабочее временя, улучшить эффективность деятельности.

Общее устройств

Принцип контроля за обеспыливанием воздуха

Наша компания
Индустрия OUCO, была установлена в феврале 1984, покрывает зону 48 000 квадратных метров, район конструкции в 35 000 квадратных метров.
OUCO размещало штаб в родном городе крана провинции Цзянсу где представляющ большинств предварительный уровень производства машинного оборудования в Китае.
OUCO имеет больше чем 150 работников, 20 технический штат. Среди этого имеет 5 старших названий, 10 среднего уровня названий, и итог сварщика 50 (кто получало аттестацию CCS, ABS и других основных заведений). Оно также имеет профессиональной аттестованный организацией штат обнаружения рванины, штат проверки качественной системы, и персонал осмотра, etc.
OUCO обеспечивает высококачественные регулируя решения и системы доступа для крана, гаван индустрий и различных нештатных структурных частей. Компания имеет свои собственные превращаться, конструировать, и производственную мощность для продуктов металлургических комплексных оборудований, морских кранов, кранов тележки, обессеривания боилера и продуктов охраны окружающей среды денитрификации в поле контроля за загрязнением воздуха. Продукты компании широко использованы в металлургическом, корабле, порте, электричестве, нефти, строительных материалах и химических промышленностях.
OUCO имеет дочерние компании в нескольких стран и служит глобальное основание клиента от стратегических пунктов в Европе, Азии, Африке, Австралии и Ближнем Востоке. Оно имеет годовую выработку 11 000 тонн производственной мощности стальной структуры.
Качество и обслуживание OUCO