Характер продукции
Это время, клиент был от управляющей компании корабля в Канаде. Краны были куплены для пользы в Филиппинах и своих окружающих водах.
Клиент выразил потребность для складчатости 1.5T7.8M и телескопичного крана корабля, поэтому мы отрегулировали первоначальное 1.5T8M от фабрики для встречи требований к и скорости клиента вверх по доставке.
К тому же, клиент предложил что крану была нужна аттестация CCS, оборудованная с платформой свободно стоящего крана работая, с мягкой краской начала и уровня C5M белой.
Мы также обеспечили тест нагрузки, полный транспорт машины, руководство деятельности, видео- онлайн инструкцию и файлы чертежа для других компонентов.
Если вы имеете потребность для изготовленного на заказ крана, то вы можете также связаться мы, информация о возможностях контактов на внизу страницы.
Спецификация
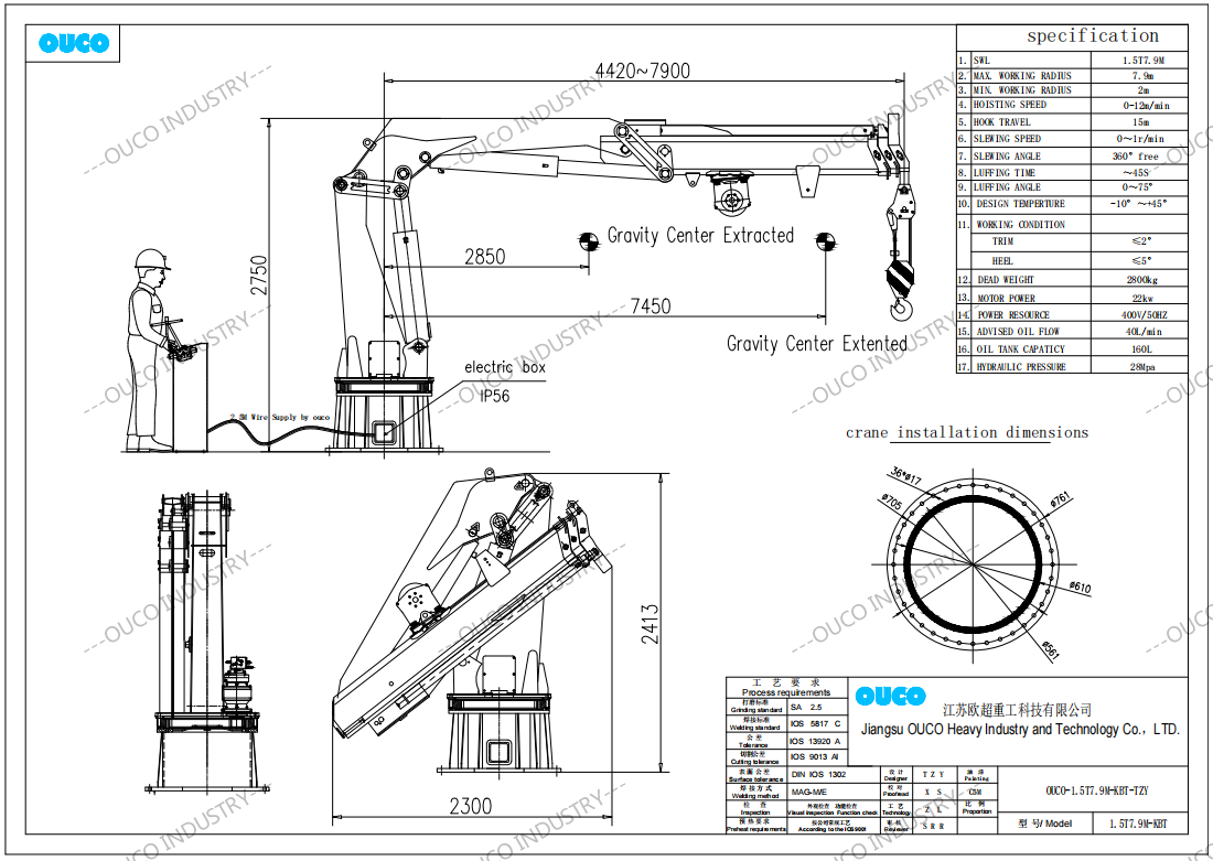
| SWL | 1.5T7.9M |
| МАКСИМАЛЬНЫЙ РАБОТАЯ РАДИУС | 7.9m |
| МИНИМАЛЬНЫЙ РАБОТАЯ РАДИУС | 2m |
| ПОДНИМАТЬ СКОРОСТЬ | 0~12m/min |
| ПОДНИМАТЬ ВЫСОТУ | 15m |
| СКОРОСТЬ ПРИ ТОРМОЖЕНИИ | 0~1r/min |
| УГОЛ SLEWING | 360° |
| LUFFING ВРЕМЯ | | 45s |
| ВРЕМЯ РАСШИРЕНИЯ | ~20s |
| УСЛОВИЯ ТРУДА | ОТДЕЛКА ≤2°HEEL ≤5° |
| СИЛА МОТОРА | 22kw |
| МЕРТВЫЙ WRIGHT | 2800KG |
| РЕСУРС СИЛЫ | 400V/50HZ |
| ПОСОВЕТОВАННАЯ ПОДАЧА МАСЛА | 40L/min |
| ЕМКОСТЬ МАСЛЯНОГО БАКА | 160L |
| ГИДРАВЛИЧЕСКОЕ ДАВЛЕНИЕ | 28Mpa |
Общее устройств


Изображение продукта




Клиент Bulid
Фабрика OUCO специализирует в поле крана на сверх 10 лет. OUCO может конструировать и изготовить любой тип краны основанные на ваших требованиях.
Лучше будет предусмотрен обеспечить ваших товаров, профессиональные, экологически дружелюбные, удобные и эффективные упаковки обслуживания безопасности.
| Бренд | OUCO |
| Запасные части | 1 набор (если нужно, более запасные части имеют в распоряжении быть обеспеченным согласно требованиям к клиентов), то |
| Гарантия | 1 год (если нужно, время гарантии имеет в распоряжении быть удлиненным согласно требованиям к клиентов), то |
| Упаковка | контейнер |
| Доставка | Стандартный продукт: 1month Подгонянный продукт: 2 месяца Аттестованные продукты: 3-4 месяцев |
Наши обслуживания
Обслуживание Пре-продаж
1. дознание и советуя с поддержка.
2. взгляд наша фабрика.
3. Проверите тест нагрузки перед пересылкой.
Послепродажное обслуживание
1. инженеры доступные служить машинное оборудование за морем.
2. проинструктируйте ваши работников как установить и использовать машину.
3. 24 месяца свободного обслуживания.
Наша фабрика

Для получения более подробной информации, пожалуйста чувствуйте свободный связаться мы.