Кран на козлах крюка прогона MG (типа u) двойной для склада
Двойное введение крана на козлах прогона:
Тип кран на козлах u прогона двойника приложен к общим материалам вручая обслуживание в на открытом воздухе дворе перевозки и вдоль железнодорожного пути, как нагружать, разгружать, поднимать и переносить работу. По мере того как больше космоса под ногами крана на козлах, он приспособлен для транспортировать более большие продукты, поддержку седловины необходимо для типа крана на козлах u, настолько общая высота крана уменьшенная, который дали некоторая высота подъема.
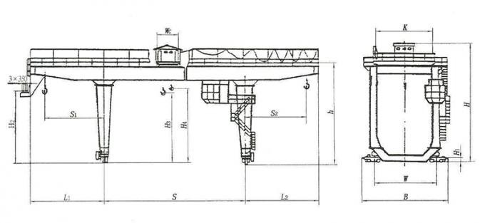
Тип кран на козлах u крюка прогона двойника главный имеет 2 подковообразных аутриггера. Кран соответствующий для железнодорожных дворов перевозки, портов, под открытым небом складов, станций пересадки контейнера, etc. с большими пядями и частой загрузки и деятельность разгружать. Кран принимает подковообразный портал, и свой зазор сверх-ноги большой (почти 7m), который соответствующий для нагружать и разгружать длинных и тяжелых товаров и контейнеров. Должный к структурным характеристикам подковообразного крана двери, снята рамка седловины, и высота всей машины уменьшена под условие некоторой поднимаясь высоты.
Подковообразный двойной главный кран на козлах крюка прогона имеет расклассифицированную поднимаясь емкость 5~500 тонн; обе стороны крана можно оборудовать с cantilevers; большая рабочая нагрузка A5~A7 (ISO); особенные крюки индустрии могут быть грейферными ковшами, магнитами, поднимая лучи; температура окружающей среды работая -40~50 градусов.
Параметр двойного крана на козлах прогона технический:
| Поднимаясь вес | 10 | 16 | 20/10 | 32/10 | 36/16 | 50/10 | |||||||
| Пядь | (m) | 18/22/26/30/35 | 18/22 | 30 | 18/22/26/30/35 | 22/26 | 22/26/30/35 | 32 | |||||
| Поднимаясь высота | Основной | 11,5 | 10,5 | 12 | 10,5 | 11,5 | 11,5 | 12 | |||||
| Вторичный | 11 | 12 | 12 | 13 | |||||||||
| Работая обязанность | A5 | A5~A6 | A5 | A5~A6 | A5~A6 | ||||||||
| Скорость | Подъем | Основной | (m/min) | 18,4 | 12,3 | 9,2 | 10,4 | 10,4 | 6 | ||||
| Вторичный | 13,2 | 13,2 | 12,3 | 18 | |||||||||
| Перемещение | Ручная тележка | 43,8 | 44,5 | 44,5 | 41,9 | 51 | 38,13 | ||||||
| Тележка | 54,6 | 48,4 | 51,2 | 49,1 | 51,2 | 48 | 51,2 | 51,2 | 51,2 | 43,8 | |||
| Стальной след (Kg/m) | 43 | 50 | |||||||||||

Преимущества:
1. Скорость управлением модуля, микро-скорость и двойная скорость;
2. Путешествовать и подниматься ровно;
3. Сила для двигать вагонетки принимает плоский кабель, сползая ровно;
4. План распределительного ящика разумен, легкий для того чтобы отремонтировать;
5. Класс IP55 защиты;
6. Опционный источник главной власти;
7. Полностью внешний номер кабельной линии связи с меткой;
8. Линия касания безопасности ровная, высокая проводимость, небольшое падение давления;
9. Легковес, удобство установки;
10. Установленная электрическая скорость такси высока, обеспечивает продолжая электропитание;
11. Опционный модуль управления скоростью, и может осуществить микро- скорость и двойную скорость.
Как выбрать:
1. Выбор крана на козлах
2. Пядь и консольная длина
3. Принцип определять колесную базу
4. Размер дистанционирования крана на козлах определен


Если вы хотите приказывать этот кран на козлах, то пожалуйста скажите мне детали следующим образом:
1. Максимальная поднимаясь емкость? (Тонна)
2. Пядь крана на козлах? (расстояние рельса для того чтобы проложить рельсы центр)
3. Вам нужны cantilevers на 2 концах луча? если он, то пожалуйста упомяните длину в сторону.
4. Максимальная поднимаясь высота крюка? (или полная высота крана)
5. Какой тип meterial воля вы, который нужно подняться?
6. Стандарт источника питания? (380V, 50Hz, 3phase или другие)