Коробчатая балка кран на козлах прогона 20 тонн одиночный для загрузки мастерской
Введение:
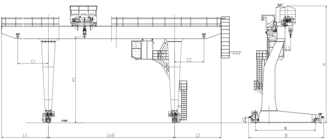
L типа краны на козлах одно-прогона главным образом использованы для нагружать и разгружать на открытом воздухе дворов груза, дворов хранения и насыпного груза. Структура металла как дверная рама. 2 аутриггера установлены под луч, который может находиться сразу на следе. Могут быть консольные лучи на обоих концах луча. Кран на козлах имеет характеристики высокого использования места, широкого рабочего диапазона, широкой приспособляемостьи и сильной многосторонности.
Коробчатая балка:
Стальная пластина сварена в типа коробк структуру, которая имеет характеристики высокой безопасности и высокой ригидности. Вообще использованный для большой тоннажности и супер кранов на козлах тоннажности. Как показано в изображении MGhz1200 обзора, с поднимаясь емкостью 1200 тонн, самый большой кран на козлах в Китае, и луч принимает структуру коробчатой балки. Коробчатая балка также имеет недостатки высокой цены, тяжелого само-веса и плохого сопротивления ветра.
Технический параметр:
| Емкость | t | 10 | 16 | 20/10 | 30/10 | 36/16 | 50/10 | ||
| Пядь | m | 18-35 | 18-30 | 18-35 | 22-26 | 26-30 | 32 | ||
| Обязанность | средство | средство | средство | средство | Тяжелый | Тяжелый/средство | |||
| поднимаясь высота | основной | m | 11,5 | 12,5 | 10,5 | 11,5 | 11,5 | 12 | |
| вспомогательный. | / | / | 11 | 12 | 12 | 13 | |||
| скорость | подъем | основной | m/min | 18,4 | 12,3 | 9,2 | 10,4 | 10,4 | 6 |
| вспомогательный. | / | / | 18,4 | 18,4 | 12,3 | 18 | |||
| траверсировать | 43,8 | 44,5 | 44 | 41,9 | 53 | 38,13 | |||
| путешествовать | 48.4-54.6 | 49.1-51.2 | 51 | 51,2 | 51,1 | 43,8 | |||

Применение:
Краны на козлах главным образом использованы для загрузки и разгружать на открытом воздухе дворов, скотных дворов и насыпных грузов груза. Своя структура металла как в форме двер рамка, и 2 фута установлены под нося луч, который может идти сразу на след на том основании, и 2 конца луча могут иметь cantilevers аутриггера. Краны на козлах имеют характеристики высокого использования места, большого рабочего диапазона, широкой приспособляемостьи и сильной многосторонности, и широко использованы в гаван дворах груза.
Фото:
