Европеец - краны легковес и низкий Headroom одиночного луча стиля надземные
Введение:
Сравненный с отечественными кранами, так называемые европейские краны не имеют никакую основную разницу в форме передачи с отечественными кранами, а основаны на уникальной европейской идее проекта и предварительной технологии изготовления, которая делает весь кран компактный и стабилизированный в деятельности.
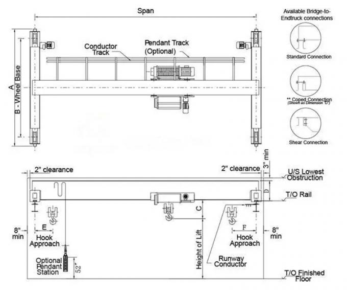
Европейские краны прикрепляют большое значение в предел поднимаясь на крюк, так, что размер головы крюка к верхнему краю всей машины бесконечно будет обжат, и даже некоторые крюки обжаты до только 1/3 из отечественного крана, таким образом значительно уменьшающ голову крюка ко дну мастерской. Загадочное расстояние. Что сказать, в случае некоторой высоты фабрики, поднимаясь высота значительно улучшена, которая так называемый низкий headroom европейского крана; к тому же, должный к небольшому размеру всей машины, допустимый предел также уменьшен соответственно. Таким образом, эффективная рабочая зона существующей мастерской значительно улучшена.
Технический параметр:
| Пядь | m | 7,5 | 10,5 | 13,5 | 16,5 | 19,5 | 22,5 | 25,5 |
| Емкость | t | 1~12.5t | ||||||
| Полный вес | kg | 1781~12086 | ||||||
| Вес вагонетки | kg | 405~740 | ||||||
| Максимальная нагрузка колеса | kn | 13.5~90.94 | ||||||
| Рельс перемещения | P24~P43 | |||||||
| Поднимаясь скорость | m/min | 0.8/5 | 0.8/5 | 0.8/5 | 0.8/5 | 0.8/5 | 0.8/5 | 0.8/5 |
| Поднимаясь высота | m | ≥ 6 | ≥ 6 | ≥ 6 | ≥ 6 | ≥ 6 | ≥ 6 | ≥ 6 |
| Полная сила мотора | kw | 4,31 | 4,31 | 4,31 | 4,31 | 4,67 | 4,67 | 4,67 |
| Скорость крана | m/min | 3-30 | 3-30 | 3-30 | 3-30 | 3-30 | 3-30 | 3-30 |
| Скорость вагонетки | m/min | 2-20 | 2-20 | 2-20 | 2-20 | 2-20 | 2-20 | 2-20 |
| Работая обязанность | M5/A5 | |||||||
Особенности:
Чертеж эскиза:

Применение:
мостовые краны Одно-прогона имеют много польз и широко использованы в действительности. В много фабрик, много изготовителей продукта выбирают краны для легкой регуляции, и краны накладных расходов одно-прогона более видны по отоношению к помощи и транспорту.
В дополнение к общим мастерским машинного оборудования, краны накладных расходов одно-прогона широко использованы в нефти и петрохимической, железнодорожной конструкции, аэропортах гражданской авиации, заводах гидроэлектроэнергии, портах, papermaking, строительных материалах, металлургии и других мастерских, складах, и материальных дворах.