Тип кабина коробки пяди крана на козлах 3-40m/линия управлением веревочки провода привесная
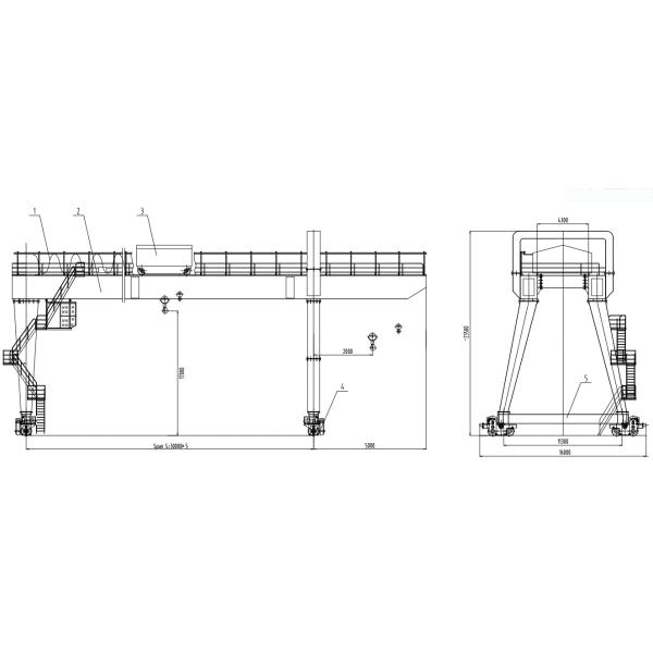
Кран на козлах машина на открытом воздухе пользы поднимаясь, которая широко использована в проектах производства, конструкции и инженерства. Это двойной кран на козлах прогона с вагонеткой, которая имеет преимущества главного представления, надежной деятельности и удобных установки и обслуживания. Оно может обеспечить разнообразие методы контроля, как дистанционное управление, привесной оперативный контроль и управление кабины. Оно приведен в действие электричеством. Консольную длину можно отрегулировать между 0-15m. Этот кран на козлах идеален для регуляции и транспортировать тяжелых грузов с быстрой скоростью и точностью. Он прочен и может быть приспособлен к различным промышленным средам.
|
Деталь
|
Блок | Результат |
| Поднимаясь емкость | тонна | 5-320ton |
| поднимаясь высота | H (m) | 3-30m |
| Пядь | m | 18-35m |
| поднимаясь скорость | m/min | 5.9-16.7 |
| скорость вагонетки | m/min | 34-44.6 |
| Работая ранг | A5 | |
| Температура рабочей Среды | °C | -20~40 |
| источник питания | трехфазное 380V 50HZ | |
| Режим контроля | управление/дистанционное управление кабины |


Кран на козлах рамки коробки MH крана Dowell машина идеальной на открытом воздухе пользы поднимаясь для различных промышленных применений. Он имеет расклассифицированный поднимаясь момент 550KN и пядь 3~40m. Этот кран на козлах имеет дистанционное управление, привесную линию, и кабину, и его можно подгонять в цвете. Кран на козлах рамки коробки MH аттестован с SGS ГОСТ (ГОСУДАРСТВЕННЫЙ СТАНДАРТ) BV CCC CE ISO и доступное минимум количество заказа 1 набора. Цена этого крана НАБОР USD 23000-100000 и она поставлена не позднее 35 трудодней. Принятые режимы оплаты L/C, T/T, западное соединение и способность поставки этого крана 5000 наборов в год.
Служба технической поддержки и обслуживание крана на козлах доступны для клиентов которые покупают продукты крана на козлах. Наша команда опытных профессионалов может обеспечить широкий диапазон обслуживаний включая установку, обслуживание, ремонт, и диагностику. Наша группа обеспечения доступное 24/7 и может быть контактирована через телефон, электронную почту, онлайн болтовню, или через наш вебсайт.
Мы также предлагаем разнообразие курсы подготовки для клиентов которые желают выучить больше о продуктах крана на козлах. Наши курсы подготовки конструированы для того чтобы помочь клиентам понять особенности и возможности кранов на козлах, так же, как как правильно привестись в действие и поддержаться их. Дополнительно, мы обеспечиваем службу технической поддержки для того чтобы помочь клиентам со всеми вопросами которые возникают во время установки и пользы кранов на козлах.
Для клиентов которым нужна помощь с продуктами крана на козлах, наша команда обслуживания клиента имеет в распоряжении снабдить ответы все вопросы вы можете иметь. Мы обеспечиваем и телефон и поддержку электронной почты, и имеем в распоряжении поговорить с вами во время регулярных рабочих часов. Если вопрос возникает который требует немедленного внимания, наша команда имеет в распоряжении обеспечить аварийную поддержку 24/7.
Краны на козлах конструированы для сверхмощных применений которые требуют высокой поднимаясь емкости и длинных пядей. Свойственные упаковка и доставка компонентов крана на козлах необходимы для обеспечения что они приезжают на их назначение безопасно и в рабочийа наряд.

A1: Фирменное наименование этого крана на козлах кран Dowell.
A2: Номер модели этого крана на козлах MG.
A3: Место происхождения этого крана на козлах Китай (материк).
A4: Этот кран на козлах имеет аттестации SGS ГОСТ (ГОСУДАРСТВЕННЫЙ СТАНДАРТ) BV CCC CE ISO.
A5: Цена этого крана на козлах от НАБОРА USD 23000-100000.