Тип электрический одиночный кран на козлах MH луча
Описание продукции
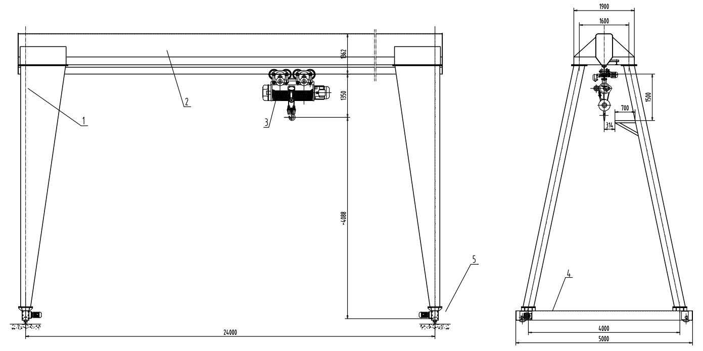
Тип кран на козлах MH электрической лебедки использован вместе с электрическими лебедками модели MD CD. Это след путешествуя небольшой и среднего размера кран. Свой свойственный поднимаясь вес 5 до 20 тонн. Свойственная пядь в 12 до 30 метра, своя свойственная работая температура -20°C к 40°C.
Этот продукт регулярный кран широко используемый на открытых земле и складах к lqad, разгружает или хватает материалы. Он имеет 2 контролируя метода, земного контролировать и управление комнаты.
Тип электрические одиночные чертежи MH крана на козлах луча


Тип электрические одиночные параметры MH крана на козлах луча
|
Деталь
|
Кран на козлах электрической лебедки серии MH
|
|
Емкость загрузки
|
3~20t
|
|
Поднимать высоту
|
6m/9m или подгонянный
|
|
Пядь
|
12~30m
|
|
Поднимать механизм
|
Электрический подъем веревочки провода
|
|
Рабочий класс
|
A3
|
|
Электропитание
|
380V 50Hz 3Ph или выполненное на заказ
|
Тип электрические одиночные преимущества MH крана на козлах луча
1.Simple и компактная текстура, устойчивое представление.
2.Easy, который нужно установить и высокая эффективность.
3.Overload, защитное приспособление низшего напряжения.
контроль 4.Pendant и дистанционное управление.
обслуживание 5.Easy.
Тип электрические одиночные особенности MH безопасности крана на козлах луча
Наши обслуживания
Мы имеем профессиональные продажи команду, privede u консервной банки быстрый и профессиональный ответ.
Исключительное боевое обеспечение в любое время, поэтому мы можем конструировать в течение 24 часов.
гарантия 2 год для всех машин, обеспечивая все части бесплатно.
Малозарядный для продолжайте обслуживание когда гарантия теряна силу.
Можем произвести самый большой кран тоннажности, как раз даем мы ваше требование.
Мы можем снабдить свободную тренировку пользователи, не тревожимся об установке.
вопросы и ответы
1. Q: Что ваше MOQ?
: 1 набор;
2. q: Что ваш период доставки?
: Не позднее 10/25/40 дней после того как ваша предплата получило; точный период должен быть основан на детальных требованиях и фактическом периоде;
3. q: Вы обеспечиваете инструменты подъема?
: Да, мы можем обеспечить все виды инструментов подъема как пояс слинга подъема, струбцина подъема, самосхват, магнит, блоки шкива, крюк, задвижка замка, веревочка провода, веревочка волокна, etc.
4. q: Смогли ваши вороты волочить склонное?
: Да, наши электрические вороты смогли волочить горизонтальное, склоненное сопротивление, поднимающ вертикаль.