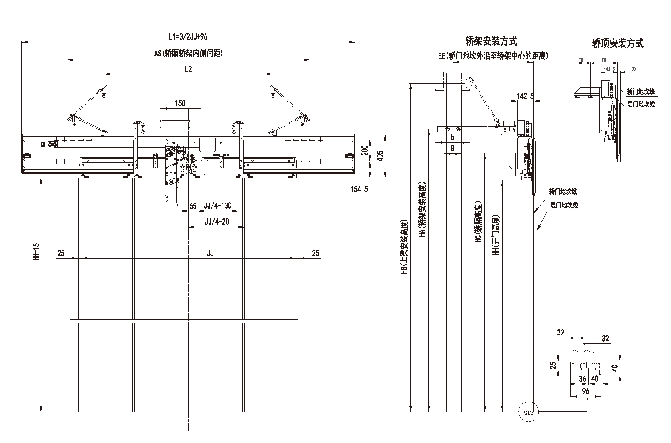
Механизм управления дверями лифта автомобиля после полудня с 96 силлом, компоненты двери лифта
Разбивочный оператор автомобильной двери панели премьер-министра отверстия 4 (с силлом 96)
Отверстие двери (OP): 1200mm-3000mm
Тип муфты: Несинхронный
Установка: Installtion автомобиля верхние/установка рамки автомобиля
| Operaor двери принимает вынуждающую систему двери настройки по частоте самой последней stepless скорости регулированную |
| ritary вращающий момент 1.Large, высокая эффективность и энергосберегающее; |
| 2.Achieve совершенно управление короткозамкнутого витка вращающего момента, скорости и положения; |
| компактный дизайн 3.More, пламя автомобиля и установка автомобиля верхняя; |
| кулачок 4.Non-Synchronous; замок автомобильной двери вариант; |
| Этот продукт соответствующий для дома, организации бизнеса, гостиницы и ect., также для лифта изменения. |




О нас
