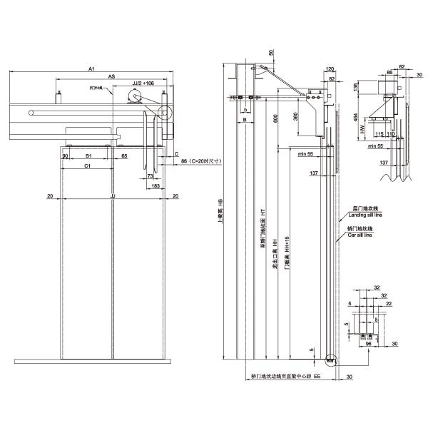
Бортовые части лифта оператора/пассажира автомобильной двери Vvvf панели отверстия 2
Бортовой оператор автомобильной двери панели VVVF отверстия 2 (с силлом 96)
Отверстие двери (OP): 600mm-1800mm
Тип муфты: Несинхронный
Установка: Installtion автомобиля верхние/установка рамки автомобиля
  
| С технологией управлением преобразования частоты VVVF; | 
| приняты 1.Stable и надежное, и одновременная передача пояса; | 
| 2.By используя конвертер VVVF и бистабильн переключатель, кривая деятельности машины более ровно и удобно; | 
| компактный дизайн 3.More, пламя автомобиля и установка автомобиля верхняя; | 
| кулачок 4.Non-Synchronous & одновременное; замок автомобильной двери вариант; | 





вопросы и ответы
1. Веревочки провода лифта прочны?
Веревочка провода лифта имеет специальные положения и требования. Конфигурация не только для веревочки и номинальной нагрузки провода, но также рассматривала размер тракции, в результате, прочность на растяжение веревочки провода больше чем вес подъема. Фактор безопасности оборудован с больше чем четырехпроводной веревочкой. Так он не сломает в то же время.
2. Опасно для отказа источника питания внезапно во время хода лифта?
Если оно происходит, то лифт автоматически остановит должное к электрическому и механическому предохранительному устройству. В случае отказа источника питания, тормозы лифта будут автоматически принятый. К тому же, отделы электропитания как запланированное повреждение, прежнее извещение также работают.
3. Завещайте нас быть ушибленным когда оно закрыло внезапно?
В заключительном процессе, если люди касаются двери залы, то дверь лифта автоматически повторит старт без любой опасности. С анти- зажимая переключателем, как только ворота касались, это действие переключения делает лифт неспособной быть закрытым и даже открытым заново. К тому же, замыкающее усилие также доступно здесь.
4. Как бег лифта?
Лифты управляются с веревочкой провода противовесу через передачу с желобчатым ведущим шкивом (трактора), делать поднимает и опускает на ведущий брус.
5. Установка эскалатора осложнена?
Мы считаем, что функции эскалатора обязательно не пропорциональны к сложности деятельности. Поэтому, эскалаторы конструированные нами прикладывают интегрированную структуру, так, что оборудование будет более точно и более эффективно и позволяет более легкий и более удобный поручать.
6. Вы имеете cerifications?
Да, мы делаем с сертификатами ISO9001/CCC/CE для u.