Малый дом, низкий уровень шума, высокоскоростной лифт для 5 человек, конструкция двери из нержавеющей стали
Домашний лифт нарушает традиционные методы проектирования лифта, используя алюминиевую сплавную раму с одночленным конструкцией вала, которая является более безопасной, более эффективной, простой структуры,и внедряет передовую европейскую систему гидравлического приводаВ то же время, благодаря использованию модульной конструкции установки,Это может значительно сэкономить время установки и сделать обслуживание более удобным.
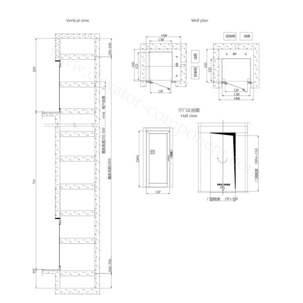
Параметры конструкции:
| Боковое расположение | За размещением | |||||
| Нагрузка ((kg) | 260 | 320 | 400 | 260 | 320 | 400 |
| Размер автомобиля | 800х1000 | 900х1200 | 1000х1200 | 1000х800 | 1200х900 | 1200х1000 |
| Размер двери | 750 | 800 | 800 | 800 | 800 | 800 |
| Размер подъемной сети | 1300х1150 | 1400х1350 | 1500х1350 | 1250х1200 | 1450х1300 | 1450х1400 |
| Высота автомобиля | 2150 | 2150 | ||||
| Высота верхнего этажа | ≥ 2600 | ≥ 2600 | ||||
| Глубина ямы | ≥ 300 | ≥ 300 | ||||




Частые вопросы
1- Лифтовые провода прочны?
Конфигурация не только для проволоки и номинальной нагрузки, но и учитывает размер тяги, в результате,прочность проволоки больше веса подъемникаУстройство безопасности оснащено более чем четырьмя проволоками, поэтому оно не сломается одновременно.
2. Опасно ли внезапное отключение электроэнергии во время работы лифта?
Если это произойдет, лифт автоматически остановится из-за электрического и механического устройства безопасности.отделы электроснабжения, такие как запланированное отключение, предварительное уведомление также работают.
3Мы не пострадаем, когда он внезапно закроется?
В процессе закрытия, если люди прикоснутся к двери коридора, дверь лифта автоматически перезапустится без опасности.Это переключающее действие делает лифт невозможно закрыть и даже снова открытьКроме того, сила закрытия также доступна здесь.
4Как работает лифт?
Подъемники работают с помощью проволочной веревки с противовесом через тяговый привод (трактор), делая подъемы и падения на проволоке.
5Установка эскалатора сложная?
Мы считаем, что функции эскалатора не обязательно пропорциональны сложности работы.чтобы оборудование было более точным и эффективным и позволило легче и удобнее вводить в эксплуатацию.
6У вас есть какие-нибудь справки?
Да, у нас есть сертификаты ISO9001 / CCC / CE для вас.