Эскалатор типа общественного транспорта SN-XDW30A ((большая рампа подъезда R)
Я не знаю, как это сделать.
Подробная информация, пожалуйста, свяжитесь с нами.
Я не знаю, как это сделать.
Силовой счетчик (((Педаль с скоростью 1000 мм 0,5 м/с)
| 8 кВт | 11 кВт | 15 кВт | 18.5 кВт | 2х11 кВт |
| 3.0m≤H≤4.0m | 4.0м | 5.2м | 7.2м | 9.0м |
| 2х15кВт | 2х18,5 кВт | 2х22кВт | 2х30кВт | / |
| 100,8 м | 14.5м | 18.0м | 22.0м | / |
Реакция подшипника
| Ширина шага | 600 | 800 | 1000 |
| R1 ((kN) | 4.1xL2+38 | 4.5xL2+40 | 5xL2 + 42.5 |
| R2 ((kN) | 4.1xL1+26 | 4.5xL1+27 | 5хL1+28.5 |
| R3 ((kN) | 4.25xL+37 | 4.5xL+39 | 5.2xL+41.5 |
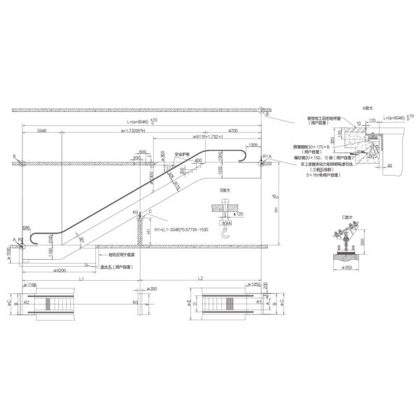
Стандартная спецификация и размеры
| Модель | XDW-60L | XDW-80L | XDM-100L | |
| Ширина шага | А. | 600 | 800 | 1000 |
| Декоративная ширина | В. | 1340 | 1540 | 1740 |
| Строительство открыто ширина | В | 1400 | 1600 | 1800 |
| Расстояние между рукоятками | D | 962 | 1162 | 1362 |
| Строительство открыто ширина | Е | 2312 | 2512 | 2712 |
| Длина основания опоры | F | 1340 | 1540 | 1740 |
| Количество ребер | G | 4 | 5 | 6 |
Спецификация
| Инструкции 1Данная схема применима к строительству эскалаторов длиной 30 м и ниже. 2Если ширина ступеней 600 или 800 мм, верхняя часть решетки должна быть продлена на 420 мм; расстояние поддержки ≤ 15000 мм. | Модель | SN-XDM-1000 | |
| Скорость | 0.5 м/с | ||
| Высота | H≤30000 мм | ||
| Угол | 30° | ||
| Сила поддержкиR1 | КН | ||
| Сила поддержкиR2 | КН | ||
| Сила поддержкиR3 | КН | ||
| Мощность двигателя | KW | ||
| Сила поставки | Сила | 380В/50Гц переменного тока | |
| Освещение | Обменное давление 220В/50Гц | ||
SN-XDW30A ((большая рампа с перилами R) стандартная однорядная конструкция ((внешняя)






Частые вопросы
1- Лифтовые провода прочны?
Конфигурация не только для проволоки и номинальной нагрузки, но и учитывает размер тяги, в результате,прочность проволоки больше веса подъемникаУстройство безопасности оснащено более чем четырьмя проволоками, поэтому оно не сломается одновременно.
2. Опасно ли внезапное отключение электроэнергии во время работы лифта?
Если это произойдет, лифт автоматически остановится из-за электрического и механического устройства безопасности.отделы электроснабжения, такие как запланированное отключение, предварительное уведомление также работают.
3Мы не пострадаем, когда он внезапно закроется?
В процессе закрытия, если люди прикоснутся к двери коридора, дверь лифта автоматически перезапустится без опасности.Это переключающее действие делает лифт невозможно закрыть и даже снова открытьКроме того, сила закрытия также доступна здесь.
4Как работает лифт?
Подъемники работают с помощью проволочной веревки с противовесом через тяговый привод (трактор), делая подъемы и падения на проволоке.
5Установка эскалатора сложная?
Мы считаем, что функции эскалатора не обязательно пропорциональны сложности работы.чтобы оборудование было более точным и эффективным и позволяло более просто и удобное ввод в эксплуатацию.
6У вас есть какие-нибудь справки?
Да, у нас есть сертификаты ISO9001 / CCC / CE для вас.