Нагрузка 630~1000kg и скорость 1.0~1.75m/s для лифта пассажира машины roomless
Знать концепцию защиты среды, энергосберегающей, сохраняя зоне здания, улучшить степень свободы в дизайне ответственность лифта без комнаты машины, полно отражает зеленый дух гуманности, лифт нужен только один независимый хороший космос, без комнаты, с таким же уровнем веса нагрузки чем обычным лифтам, сохраняя бушель 40% энергии, район конструкции спасения 10%.
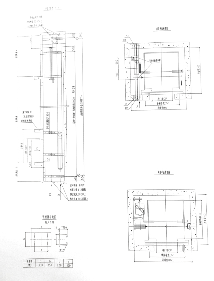
| Нагрузка (kg) | Скорость (m/s) | Чистый размер автомобиля | Чистый hoistway размер | Максимальная посадка | Максимальное перемещение | |||||
| CW | CD | OP | HW | HD | S | K | ||||
| 630 | 1,0 | 1200 | 1300 | 800 | 2150 | 1950 | 1500 | 4500 | 20 | 60 |
| 1,5 | 1200 | 1300 | 800 | 2150 | 1950 | 1600 | 4700 | 24 | 72 | |
| 1,75 | 1200 | 1300 | 800 | 2150 | 1950 | 1700 | 4800 | 30 | 90 | |
| 800 | 1,0 | 1350 | 1400 | 800 | 2300 | 2000 | 1500 | 4500 | 20 | 60 |
| 1,5 | 1350 | 1400 | 800 | 2300 | 2000 | 1600 | 4700 | 24 | 72 | |
| 1,75 | 1350 | 1400 | 800 | 2300 | 2000 | 1700 | 4800 | 30 | 90 | |
| 1000 | 1,0 | 1500 | 1600 | 900 | 2450 | 2100 | 1500 | 4500 | 20 | 60 |
| 1,5 | 1500 | 1600 | 900 | 2450 | 2100 | 1600 | 4700 | 24 | 72 | |
| 1,75 | 1500 | 1600 | 900 | 2450 | 2100 | 1700 | 4800 | 30 | 90 | |



вопросы и ответы
1. Веревочки провода лифта прочны?
Веревочка провода лифта имеет специальные положения и требования. Конфигурация не только для веревочки и номинальной нагрузки провода, но также рассматривала размер тракции, в результате, прочность на растяжение веревочки провода больше чем вес подъема. Фактор безопасности оборудован с больше чем четырехпроводной веревочкой. Так он не сломает в то же время.
2. Опасно для отказа источника питания внезапно во время хода лифта?
Если оно происходит, то лифт автоматически остановит должное к электрическому и механическому предохранительному устройству. В случае отказа источника питания, тормозы лифта будут автоматически принятый. К тому же, отделы электропитания как запланированное повреждение, прежнее извещение также работают.
3. Завещайте нас быть ушибленным когда оно закрыло внезапно?
В заключительном процессе, если люди касаются двери залы, то дверь лифта автоматически повторит старт без любой опасности. С анти- зажимая переключателем, как только ворота касались, это действие переключения делает лифт неспособной быть закрытым и даже открытым заново. К тому же, замыкающее усилие также доступно здесь.
4. Как бег лифта?
Лифты управляются с веревочкой провода противовесу через передачу с желобчатым ведущим шкивом (трактора), делать поднимает и опускает на ведущий брус.
5. Установка эскалатора осложнена?
Мы считаем, что функции эскалатора обязательно не пропорциональны к сложности деятельности. Поэтому, эскалаторы конструированные нами прикладывают интегрированную структуру, так, что оборудование будет более точно и более эффективно и позволяет более легкий и более удобный поручать.
6. Вы имеете cerifications?
Да, мы делаем с сертификатами ISO9001/CCC/CE для u.