На улице 12° эскалаторы и движущиеся тротуары скорость 0,5 м / с для супермаркетов
| Мощность двигателя (КВт) |
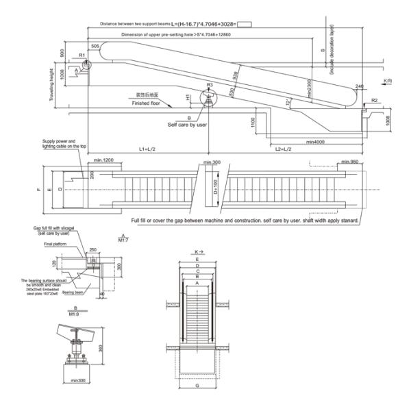
Высота передвижения H |
Высота передвижения H |
||
| 1000-3000 | 5.5 | 1000-3200 | 5.5 | |
| 3000-4000 | 7.5 | 3300-4200 | 7.5 | |
| 4100-4200 | 8 | 4300 - 4400 | 8 | |
| 4300 - 6800 | 11 | 4500-7000 | 11 | |
| 6900-9000 | 15 | 7100-9200 | 15 | |
| Центр поддержка высота H1 |
Когда высота путешествия 2600 < H < 5800, мы сделали, чтобы использовать один Центр поддержки. И поддерживающая высота H1=H/2-780. |
|||
| Центр поддержка высота H1 Центр поддержка высота H2 |
Когда высота путешествия 5800 < H < 7800, мы сделали, чтобы использовать два центра Поддержки. Высота первого. H1=H/3-881, а второй - H2=2H/3-681. |
|||
| Электрическое питание Использование необходимо для питания 380V AC 50Hz трехфазный пятипроводной источник питания. движущийся ход на старте и напряжение должно быть ≤ 5 при нормальной работе,максимальный стартовый ток Должно быть меньше чем в 3,5 раза от номинального тока. |
||||
| Технические примечания | ||
| Угол погружения α | 12° | |
| Скорость V | 0.5 м/с | |
| Ширина ступени A | 1000 | 800 |
| Расстояние между внутренними сторонами рукоятки В. |
1158 | 958 |
|
Расстояние до центра рулевого канала В |
1238 | 1038 |
| Передвигающаяся прогулка за пределами ширины D |
1600 | 1400 |
|
Длина подпорной балки Е |
1660 | 1460 |
| Ширина наружного ствола F |
2310 | 2110 |
| Ширина ямы G | 1660 | 1460 |
| Поддерживать противоположную силу R1[kN] |
0.009xL11+22 | 0.0078xL11+19 |
| Поддерживать противоположную силу R2 [kN] |
0.009xL12+10 | 0.0078xL12+9 |
|
Поддерживать противоположную силу R3 [kN] |
0.0117x[L1+L2] | 0.01014x[L1+L2] |
|
Поддерживать противоположную силу R4 [kN] |
0.0117x[L2+L3] | 0.01014x[L2+L3] |
Примечания
1.Когда движущаяся ходьба установлена на втором этаже и выше, яма отменяется.
и выход конструкции должны быть симметричными.
2. Достаточно свободного пространства необходимо на входе
Ширина должна быть не менее 1310 и глубина от ремня перила
Круг отклонения любого барьера не должен быть меньше 2500.
3. расстояние между движущейся ходьбой и
любой барьер должен быть ≥ 500
4. Потребность пользователя. Поставка оборудования для заземления с меньшим сопротивлением
чем 4 Ом.
5.Когда высота движения H≤2600, не может поддерживать R3, R4.
6.когда высота движения 2600 7.Когда высота 5800 < H≤7800, нам нужно только 10 поддержки R3, R4 и L1=12=13=1/3. 8.Этот план является текущим 12° стандартный движущийся ход конструкции размера, если конструкция не может быть выполнена, пожалуйста, свяжитесь с технологическим отделом 9Мы оставляем за собой право на изменения без предварительного уведомления. 12° Начертание конструкции движущейся прогулки Частые вопросы





1- Лифтовые провода прочны?
Конфигурация не только для проволоки и номинальной нагрузки, но и учитывает размер тяги, в результате,прочность проволоки больше веса подъемникаУстройство безопасности оснащено более чем четырьмя проволоками, поэтому оно не сломается одновременно.
2. Опасно ли внезапное отключение электроэнергии во время работы лифта?
Если это произойдет, лифт автоматически остановится из-за электрического и механического устройства безопасности.отделы электроснабжения, такие как запланированное отключение, предварительное уведомление также работают.
3Мы не пострадаем, когда он внезапно закроется?
В процессе закрытия, если люди прикоснутся к двери коридора, дверь лифта автоматически перезапустится без опасности.Это переключающее действие делает лифт невозможно закрыть и даже снова открытьКроме того, сила закрытия также доступна здесь.
4Как работает лифт?
Подъемники работают с помощью проволочной веревки с противовесом через тяговый привод (трактор), делая подъемы и падения на проволоке.
5Установка эскалатора сложная?
Мы считаем, что функции эскалатора не обязательно пропорциональны сложности работы.чтобы оборудование было более точным и эффективным и позволило легче и удобнее вводить в эксплуатацию.
6У вас есть какие-нибудь справки?
Да, у нас есть сертификаты ISO9001 / CCC / CE для вас.