Нержавеющая сталь космоса высокоскоростного лифта большая для размера двери отверстия больницы 1100*2100
Лифт больницы
 Внутренняя стена автомобиля подъема принимает стойки нержавеющей стали перекрывая и нержавеющая сталь обходя линии, которые можно совершенно совместить с высококачественными материалами панели, таким образом продвигает выделять стабилизированную и великодушную атмосферу.
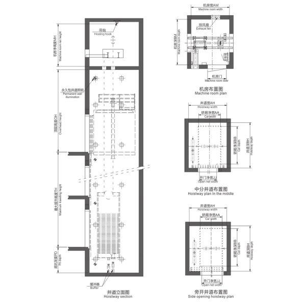
 Таблица параметра лифта больницы машины roomless
| Нагрузка (kg) | Скорость (m/s) | Размер входа (mm) | Размер автомобиля (mm) | Размер hoistway (mm) | Надземная высота (mm) | Глубина ямы (mm) | Максимальная высота путешествовать (m) | 
| 1600 | 1,0 | 1100*2100 центр-отверстие | 1400*2400*2250 | 2400*2800 | 4100/4300 | 1500 | 30/50 | 
| 1,6 | 4250/4400 | 1600 | 30/60 | ||||
| 1,75 | 4300/4400 | 1650 | 30/75 | ||||
| 1600 | 1,0 | 1300*2100 сторон-отверстие | 1400*2400*2250 | 2400*2900 | 4200/4300 | 1500 | 30/50 | 
| 1,6 | 4350/4400 | 1600 | 30/60 | ||||
| 1,75 | 4400/4450 | 1650 | 30/75 | ||||
| 1600 (Через дверь) | 1,0 | 1100*2100 центр-отверстие | 1400*2400*2250 | 2400*2910 | 4100/4300 | 1500 | 30/50 | 
| 1,6 | 4250/4400 | 1600 | 30/60 | ||||
| 1,75 | 4300/4400 | 1650 | 30/75 | ||||
| 1600 (Через дверь) | 1,0 | 1300*2100 сторон-отверстие | 1400*2400*2250 | 2400*3050 | 4200/4300 | 1500 | 30/50 | 
| 1,6 | 4350/4400 | 1600 | 30/60 | ||||
| 1,75 | 4400/4450 | 1650 | 30/75 | 



вопросы и ответы
1. Веревочки провода лифта прочны?
Веревочка провода лифта имеет специальные положения и требования. Конфигурация не только для веревочки и номинальной нагрузки провода, но также рассматривала размер тракции, в результате, прочность на растяжение веревочки провода больше чем вес подъема. Фактор безопасности оборудован с больше чем четырехпроводной веревочкой. Так он не сломает в то же время.
2. Опасно для отказа источника питания внезапно во время хода лифта?
Если оно происходит, то лифт автоматически остановит должное к электрическому и механическому предохранительному устройству. В случае отказа источника питания, тормозы лифта будут автоматически принятый. К тому же, отделы электропитания как запланированное повреждение, прежнее извещение также работают.
3. Завещайте нас быть ушибленным когда оно закрыло внезапно?
В заключительном процессе, если люди касаются двери залы, то дверь лифта автоматически повторит старт без любой опасности. С анти- зажимая переключателем, как только ворота касались, это действие переключения делает лифт неспособной быть закрытым и даже открытым заново. К тому же, замыкающее усилие также доступно здесь.
4. Как бег лифта?
Лифты управляются с веревочкой провода противовесу через передачу с желобчатым ведущим шкивом (трактора), делать поднимает и опускает на ведущий брус.
5. Установка эскалатора осложнена?
Мы считаем, что функции эскалатора обязательно не пропорциональны к сложности деятельности. Поэтому, эскалаторы конструированные нами прикладывают интегрированную структуру, так, что оборудование будет более точно и более эффективно и позволяет более легкий и более удобный поручать.
6. Вы имеете cerifications?
Да, мы делаем с сертификатами ISO9001/CCC/CE для u.