Грузовой лифт с его гравитацией большой красивый и прочный / Номинальная скорость 0,25 ~ 1,0 м / с
По сравнению с традиционными лифтами, грузовые лифты, с их большой гравитацией, красивыми и прочными, энергоэффективными и другими характеристиками,могут быть максимально удовлетворены для удовлетворения различных мест различных потребностей грузаИспользуя передовые технологии и меры контроля окружающей среды, мы должны придерживаться безопасной перевозки.Он может практиковать промышленную транспортную миссию с помощью технологии.
Сверхразмерная нагрузка
12000 кг большого груза, легко справиться с различными потребностями разных мест.
Безопасный и надежный
Используя несколько безопасных устройств, он может обеспечить безопасность людей и грузов и обеспечить плавную перевозку в течение всего путешествия.
Профили прочные
Полный стальной клетки материалы, по сравнению с общим профилем, большая прочность, чтобы выдержать сильные удары.
| Загрузка пропускная способность ((kg) |
Рейтинговый скорость ((m/s) |
Открытие двери ширина ((мм) |
Открытие двери высота ((мм) |
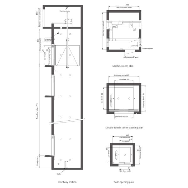
Размер автомобиля ((мм) Ширина Глубина Высота |
Размер подъемного пути ((мм) Ширина Глубина |
Размер машинного помещения ((мм) Ширина Глубина |
Верхний этаж высота ((мм) |
Яма глубина ((мм) |
Макс.Путешествие высота ((мм) |
| 1000 | 0.5 | боковое открытие 1300 |
2100 |
1300 1750 2300 |
2400 2250 |
3100 3800 |
4300 | 1600 | 44 |
| 0.63 | боковое открытие 1300 |
2100 |
1300 1750 2300 |
2400 2250 |
3100 3800 |
4300 | 1600 | 56 | |
| 1.0 | боковое открытие 1300 |
2100 |
1300 1750 2300 |
2400 2250 |
3100 3800 |
4300 | 1600 | 76 | |
| 1600 | 0.5 | боковое открытие 1500 |
2100 |
1500 2250 2300 |
2700 2750 |
3400 4500 |
4300 | 1600 | 44 |
| 0.63 | боковое открытие 1500 |
2100 |
1500 2250 2300 |
2700 2750 |
3400 4500 |
4300 | 1600 | 56 | |
| 1.0 | боковое открытие 1500 |
2100 |
1500 2250 2300 |
2700 2750 |
3400 4500 |
4300 | 1700 | 76 | |
| 2000 | 0.5 | боковое открытие 1500 |
2100 |
1500 2700 2300 |
2700 3200 |
3400 4500 |
4300 | 1600 | 44 |
| 1.0 | боковое открытие 1500 |
2100 |
1500 2700 2300 |
2700 3200 |
3400 4500 |
4300 | 1700 | 76 | |
| 3000 | 0.5 | двойной слой Открытие центра 2200 |
2100 |
2200 2600 2300 |
3600 3100 |
3600 4400 |
4300 | 1700 | 44 |
| 4000 | 0.25 | двойной слой Открытие центра 2200 |
2300 |
2200 3200 2500 |
3800 3700 |
3800 4100 |
4500 | 1800 | 44 |
| 0.5 | двойной слой Открытие центра 2200 |
2300 |
2200 3200 2500 |
3800 3700 |
3800 4100 |
4500 | 1800 | 44 | |
| 5000 | 0.25 | двойной слой Открытие центра 2400 |
2300 |
2400 3600 2500 |
4100 4100 |
4100 4500 |
4500 | 1800 | 44 |
| 7000 | 0.5 | двойной слой Открытие центра 2400 |
2300 |
2400 3600 2500 |
4100 4100 |
4100 4500 |
4500 | 1800 | 44 |





Частые вопросы
1- Лифтовые провода прочны?
Конфигурация не только для проволоки и номинальной нагрузки, но и учитывает размер тяги, в результате,прочность проволоки больше веса подъемникаУстройство безопасности оснащено более чем четырьмя проволоками, поэтому оно не сломается одновременно.
2. Опасно ли внезапное отключение электроэнергии во время работы лифта?
Если это произойдет, лифт автоматически остановится из-за электрического и механического устройства безопасности.отделы электроснабжения, такие как запланированное отключение, предварительное уведомление также работают.
3Мы не пострадаем, когда он внезапно закроется?
В процессе закрытия, если люди прикоснутся к двери коридора, дверь лифта автоматически перезапустится без опасности.Это переключающее действие делает лифт невозможно закрыть и даже снова открытьКроме того, сила закрытия также доступна здесь.
4Как работает лифт?
Подъемники работают с помощью проволочной веревки с противовесом через тяговый привод (трактор), делая подъемы и падения на проволоке.
5Установка эскалатора сложная?
Мы считаем, что функции эскалатора не обязательно пропорциональны сложности работы.чтобы оборудование было более точным и эффективным и позволяло более просто и удобное ввод в эксплуатацию.
6У вас есть какие-нибудь справки?
Да, у нас есть сертификаты ISO9001 / CCC / CE для вас.