Автоматическая система управления дверями лифта с 2 панелями и деталями лифта
Дверь шахты с двумя панелями, открывающаяся по центру
Что такое посадка лифта?
Посадка лифта. Часть этажа, балкона или платформы, примыкающая к шахте лифта, которая используется для приема и высадки пассажиров или грузов.
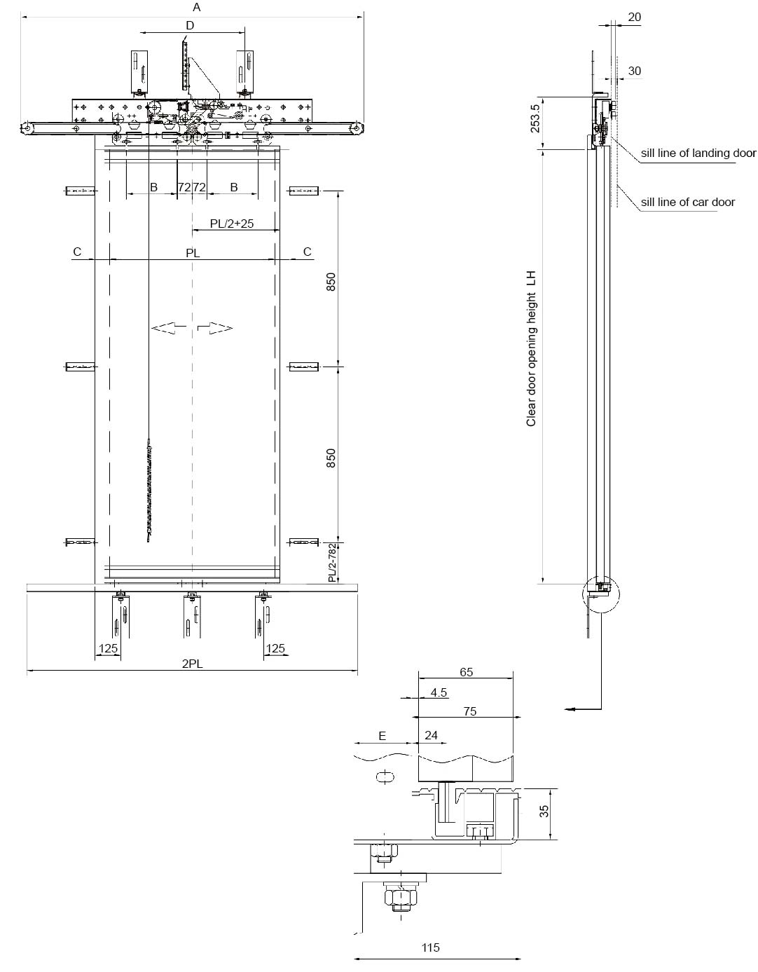
| PL | 600 | 650 | 700 | 750 | 800 | 850 | 900 | 950 | 1000 | 1050 | 1100 |
| A | 1290 | 1340 | 1390 | 1560 | 1660 | 1710 | 1890 | 1940 | 1990 | 2190 | 2240 |
| B | 161 | 221 | 246 | 311 | 386 | ||||||
| D | ...... | 510 | 680 | 885 | |||||||




FAQ
1. Долговечны ли тросы лифта?
Тросы лифта имеют специальные положения и требования. Конфигурация учитывает не только трос и номинальную нагрузку, но и размер тяги, в результате чего прочность троса на разрыв больше, чем вес лифта. Коэффициент безопасности обеспечивается более чем четырьмя тросами. Поэтому они не порвутся одновременно.
2. Опасно ли внезапное отключение электроэнергии во время работы лифта?
Если это произойдет, лифт автоматически остановится из-за устройства электрической и механической безопасности. В случае отключения электроэнергии автоматически срабатывают тормоза лифта. Кроме того, также работают отделы энергоснабжения, такие как плановое отключение, предварительное уведомление.
3. Пострадаем ли мы, когда дверь внезапно закроется?
В процессе закрытия, если люди коснутся двери шахты, дверь лифта автоматически перезапустится без какой-либо опасности. С противозажимным выключателем, как только ворота коснутся, это переключение делает невозможным закрытие лифта и даже его повторное открытие. Кроме того, здесь также доступна сила закрытия.
4. Как работает лифт?
Лифты работают с помощью троса противовеса через (тракторный) тяговый привод, совершая подъемы и спуски по направляющей.
5. Сложна ли установка эскалатора?
Мы считаем, что функции эскалатора не обязательно пропорциональны сложности эксплуатации. Поэтому эскалаторы, разработанные нами, используют интегрированную структуру, благодаря чему оборудование становится более точным и эффективным, а также обеспечивает более простую и удобную настройку.
6. Есть ли у вас какие-либо сертификаты?
Да, у нас есть сертификаты ISO9001 / CCC / CE.