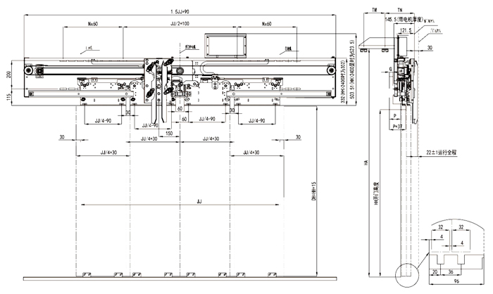
Разбивочный механизм управления дверями AC премьер-министра панелей отверстия 4 (интерфейс ZP)
Части лифта JJ 1300~3000/разбивочный механизм управления дверями подъема AC премьер-министра панелей отверстия 4
Используя усиленный тип мотор премьер-министра, зеленая охрана окружающей среды, главное представление
Используя 32bit DSP, управление короткозамкнутого витка вектора, разрешение 4096 Encorder, аттестация CE
Интегрированный замок автомобильной двери синхронизируя муфту двери, отладку прост
Опционное приложение мобильного телефона, опционная автоматическая система предупреждения
Множественная установка, ровная деятельность, шум ≤55dBA
Усиленная структура ведущего бруса
| JJ | 1200 | 1300 | 1400 | 1500 | 1600 | 1700 | 1800 | 1900 | 2000 | 2100 | 2200 | 2300 | 2400 | 2500 | 2600 | 2700 | 2800 | 2900 | 3000 |
| HH | 2000≤HH≤3100 | ||||||||||||||||||
Установка разбивочного автомобиля механизма управления дверями AC премьер-министра панелей отверстия 4 (интерфейса ZP) верхняя



вопросы и ответы
1. Веревочки провода лифта прочны?
Веревочка провода лифта имеет специальные положения и требования. Конфигурация не только для веревочки и номинальной нагрузки провода, но также рассматривала размер тракции, в результате, прочность на растяжение веревочки провода больше чем вес подъема. Фактор безопасности оборудован с больше чем четырехпроводной веревочкой. Так он не сломает в то же время.
2. Опасно для отказа источника питания внезапно во время хода лифта?
Если оно происходит, то лифт автоматически остановит должное к электрическому и механическому предохранительному устройству. В случае отказа источника питания, тормозы лифта будут автоматически принятый. К тому же, отделы электропитания как запланированное повреждение, прежнее извещение также работают.
3. Завещайте нас быть ушибленным когда оно закрыло внезапно?
В заключительном процессе, если люди касаются двери залы, то дверь лифта автоматически повторит старт без любой опасности. С анти- зажимая переключателем, как только ворота касались, это действие переключения делает лифт неспособной быть закрытым и даже открытым заново. К тому же, замыкающее усилие также доступно здесь.
4. Как бег лифта?
Лифты управляются с веревочкой провода противовесу через передачу с желобчатым ведущим шкивом (трактора), делать поднимает и опускает на ведущий брус.
5. Установка эскалатора осложнена?
Мы считаем, что функции эскалатора обязательно не пропорциональны к сложности деятельности. Поэтому, эскалаторы конструированные нами прикладывают интегрированную структуру, так, что оборудование будет более точно и более эффективно и позволяет более легкий и более удобный поручать.
6. Вы имеете cerifications?
Да, мы делаем с сертификатами ISO9001/CCC/CE для u.