24 В автоматический лифтовый скользящий дверной оператор / Домашние части лифтовых дверей
Как работают автоматические двери лифта?
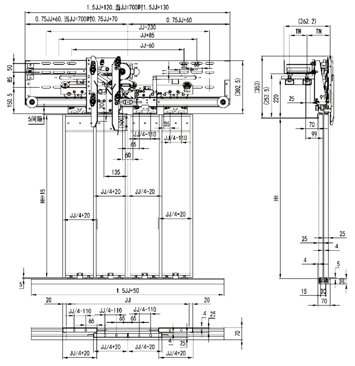
Двери на автомобилях работают с помощью электродвигателя, который подключен к контроллеру лифта.Металлическая рука связана с другой рукойДверь может скользить вперед и назад на металлическом рельсе.
Использование постоянного 24V PM двигателя, надежное безопасное напряжение
Используя ширину порога двери 70 мм, сэкономить пространство вала
Интегрированный замок двери автомобиля синхронизирующий дверной соединитель, отладка проста
Факультативное приложение для мобильных телефонов, Факультативное автоматическое предупреждение
Многократная установка, бесперебойная работа, шум ≤55dBA
| Джей Джей. | 700 | 750 | 800 | 850 | 900 | 950 | 1000 | 1050 | 1100 | 1150 | 1200 |
| HH | 2000≤HH≤2300 | ||||||||||
Центр открытия 4 панели оператора двери AC PM ((Домашний лифт 24V) Установка автомобиля на крыше





Частые вопросы
1- Лифтовые провода прочны?
Конфигурация не только для проволоки и номинальной нагрузки, но и учитывает размер тяги, в результате,прочность проволоки больше веса подъемникаУстройство безопасности оснащено более чем четырьмя проволоками, поэтому оно не сломается одновременно.
2. Опасно ли внезапное отключение электроэнергии во время работы лифта?
Если это произойдет, лифт автоматически остановится из-за электрического и механического устройства безопасности.отделы электроснабжения, такие как запланированное отключение, предварительное уведомление также работают.
3Мы не пострадаем, когда он внезапно закроется?
В процессе закрытия, если люди прикоснутся к двери коридора, дверь лифта автоматически перезапустится без опасности.Это переключающее действие делает лифт невозможно закрыть и даже снова открытьКроме того, сила закрытия также доступна здесь.
4Как работает лифт?
Подъемники работают с помощью проволочной веревки с противовесом через тяговый привод (трактор), делая подъемы и падения на проволоке.
5Установка эскалатора сложная?
Мы считаем, что функции эскалатора не обязательно пропорциональны сложности работы.чтобы оборудование было более точным и эффективным и позволило легче и удобнее вводить в эксплуатацию.
6У вас есть какие-нибудь справки?
Да, у нас есть сертификаты ISO9001 / CCC / CE для вас.