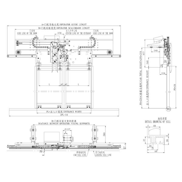
Центр-отверстие 2 обшивает панелями механизм управления дверями лифта Vvvf для подъема лифта
Ременная передача механизма управления дверями лифта Vvvf 2 панелей одновременная для лифта пассажира
Центр-отверстие 2 обшивает панелями механизм управления дверями
Технология настройки по частоте VVVF (меняя напряжение тока и меняя частота) переменная
Используя одновременную ременную передачу, одновременные методы установки к легкому
Методы установки: Установка автомобиля верхняя
| PL | 600 | 700 | 800 | 900 | 1000 | 1100 | 1200 | 1300 |
| 1250 | 1450 | 1650 | 1850 | 2050 | 2250 | 2450 | 2650 | |
| B | 1150 | 1350 | 1630 | 2100 | ||||
| D | 500 600 700 800 900 | 600 700 800 900 1000 | 800 900 1000 1100 | 900 1000 1100 1200 1300 | ||||
| E | 20 | 62,5 | 52,5 | 17,5 | ||||
| L | 195 | 245 | 295 | 345 | 395 | 445 | 495 | 545 |
Общие размеры




вопросы и ответы
1. Веревочки провода лифта прочны?
Веревочка провода лифта имеет специальные положения и требования. Конфигурация не только для веревочки и номинальной нагрузки провода, но также рассматривала размер тракции, в результате, прочность на растяжение веревочки провода больше чем вес подъема. Фактор безопасности оборудован с больше чем четырехпроводной веревочкой. Так он не сломает в то же время.
2. Опасно для отказа источника питания внезапно во время хода лифта?
Если оно происходит, то лифт автоматически остановит должное к электрическому и механическому предохранительному устройству. В случае отказа источника питания, тормозы лифта будут автоматически принятый. К тому же, отделы электропитания как запланированное повреждение, прежнее извещение также работают.
3. Завещайте нас быть ушибленным когда оно закрыло внезапно?
В заключительном процессе, если люди касаются двери залы, то дверь лифта автоматически повторит старт без любой опасности. С анти- зажимая переключателем, как только ворота касались, это действие переключения делает лифт неспособной быть закрытым и даже открытым заново. К тому же, замыкающее усилие также доступно здесь.
4. Как бег лифта?
Лифты управляются с веревочкой провода противовесу через передачу с желобчатым ведущим шкивом (трактора), делать поднимает и опускает на ведущий брус.
5. Установка эскалатора осложнена?
Мы считаем, что функции эскалатора обязательно не пропорциональны к сложности деятельности. Поэтому, эскалаторы конструированные нами прикладывают интегрированную структуру, так, что оборудование будет более точно и более эффективно и позволяет более легкий и более удобный поручать.
6. Вы имеете cerifications?
Да, мы делаем с сертификатами ISO9001/CCC/CE для u.