Сторон-отверстие 2 обшивает панелями посадку для консервооткрывателя двери подъема лифта электрического
посадка панелей Сторон-отверстия 2
Замок посадки FEL-161
Sellf-заключительные методы: Используя режим падения веса само-заключительный, падение веса и ведущую штанга
установленный внутрь панелей двери
Открывать методы: используя открывать панели двери
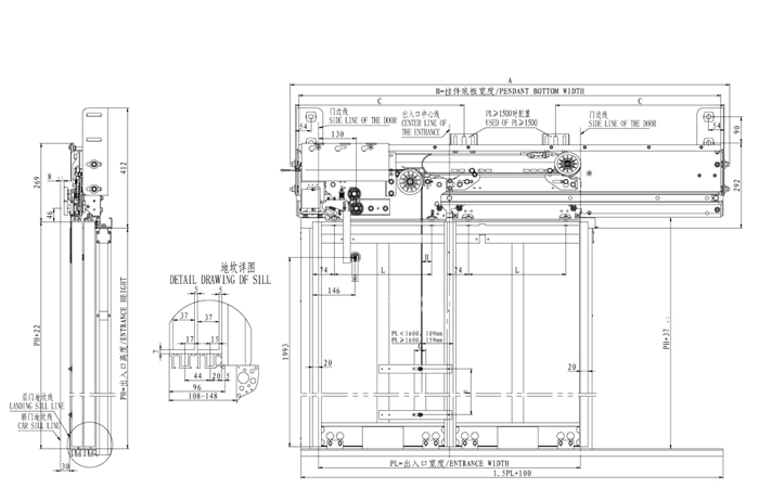
| PL | 600 | 700 | 800 | 900 | 1000 | 1100 | 1200 | 1300 | 1400 | 1500 | 1600 | 1700 | 1800 |
| 1064 | 1214 | 1364 | 1514 | 1664 | 1814 | 1964 | 2114 | 2264 | 2414 | 2564 | 2714 | 2864 | |
| B | 1000 | 1150 | 1300 | 1450 | 1600 | 1750 | 1900 | 2050 | 2200 | 2350 | 2500 | 2650 | 2800 |
| L | 185 | 235 | 285 | 335 | 385 | 435 | 485 | 535 | 585 | 635 | 685 | 735 | 785 |
Общие размеры




вопросы и ответы
1. Веревочки провода лифта прочны?
Веревочка провода лифта имеет специальные положения и требования. Конфигурация не только для веревочки и номинальной нагрузки провода, но также рассматривала размер тракции, в результате, прочность на растяжение веревочки провода больше чем вес подъема. Фактор безопасности оборудован с больше чем четырехпроводной веревочкой. Так он не сломает в то же время.
2. Опасно для отказа источника питания внезапно во время хода лифта?
Если оно происходит, то лифт автоматически остановит должное к электрическому и механическому предохранительному устройству. В случае отказа источника питания, тормозы лифта будут автоматически принятый. К тому же, отделы электропитания как запланированное повреждение, прежнее извещение также работают.
3. Завещайте нас быть ушибленным когда оно закрыло внезапно?
В заключительном процессе, если люди касаются двери залы, то дверь лифта автоматически повторит старт без любой опасности. С анти- зажимая переключателем, как только ворота касались, это действие переключения делает лифт неспособной быть закрытым и даже открытым заново. К тому же, замыкающее усилие также доступно здесь.
4. Как бег лифта?
Лифты управляются с веревочкой провода противовесу через передачу с желобчатым ведущим шкивом (трактора), делать поднимает и опускает на ведущий брус.
5. Установка эскалатора осложнена?
Мы считаем, что функции эскалатора обязательно не пропорциональны к сложности деятельности. Поэтому, эскалаторы конструированные нами прикладывают интегрированную структуру, так, что оборудование будет более точно и более эффективно и позволяет более легкий и более удобный поручать.
6. Вы имеете cerifications?
Да, мы делаем с сертификатами ISO9001/CCC/CE для u.