| Имя запасных частей экскаватора | положение ламп-светосигнализатора |
| Образец техники | Р140В7 Р140В7А Р170В7 Р200В7 Р200В7А |
| Категория частей | Части экскаватора запасные |
| Условие запасных частей | Совершенно новый |
| МОК заказа (ПКС, НАБОР) | 1 |
| Наличие частей | В запасе |
| Время выполнения доставки | 1-3 дней |
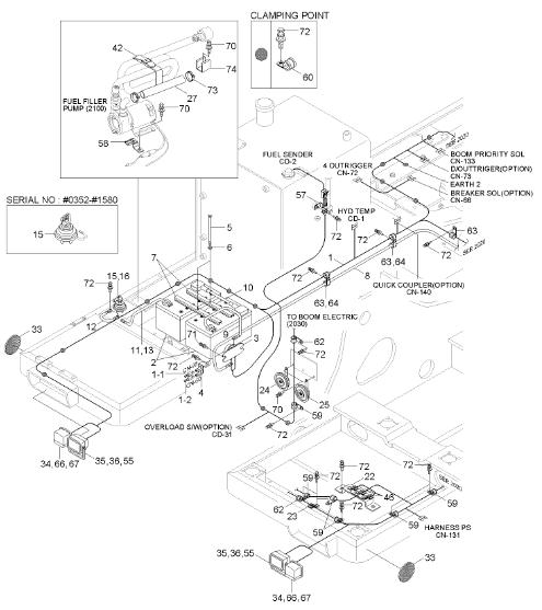
ЭКСКАВАТОР Р95В3 КОЛЕСА 3 СЕРИЙ
ЭКСКАВАТОР Р140В7 Р140В7А Р170В7 Р200В7 Р200В7А Хюндай КОЛЕСА 7 СЕРИЙ

| Пос. | Номер детали | Кты | Имя частей | Комментарии |
| 1 | 21Н6-24011 | [1] | ХАРНЭСС-ФРАМЭ | |
| 1 | 21Н6-24012 | [1] | ХАРНЭСС-ФРАМЭ | |
| 1 | 21Н6-24013 | [1] | ХАРНЭСС-ФРАМЭ | |
| 1 | 21Н6-24014 | [1] | ХАРНЭСС-ФРАМЭ | |
| 1 | 21Н6-24015 | [1] | ХАРНЭСС-ФРАМЭ | |
| 1 | 21Н6-24016 | [1] | ХАРНЭСС-ФРАМЭ | |
| 1 | 21Н6-24017 | [1] | ХАРНЭСС-ФРАМЭ | |
| 1 | 21Н6-24018 | [1] | ХАРНЭСС-ФРАМЭ | |
| 1 | 21Н6-24019 | [1] | ХАРНЭСС-ФРАМЭ | |
| 1 | 21Н6-24020 | [1] | ХАРНЭСС-ФРАМЭ | |
| 1 | 21Н6-24021 | [1] | ХАРНЭСС-ФРАМЭ | |
| 1 | 21Н6-24022 | [1] | ХАРНЭСС-ФРАМЭ | |
| 1 | 21Н6-24023 | [1] | ХАРНЭСС-ФРАМЭ | |
| 1 | 21Н6-24024 | [1] | ХАРНЭСС-ФРАМЭ | |
| 1-1. | 21Н4-01311 | [1] | ЛИНК-ФУСИБЛЭ (30А) | |
| 1-2. | 21Н4-01320 | [1] | ЛИНК-ФУСИБЛЭ (60А) | |
| 1-3. | 21ЭА-50550 | [1] | ДИОД | НЕ ПОКАЗАННЫЙ |
| 2 | 21Э6-20270 | [2] | БАТАРЕЯ | |
| 3 | 21Э5-0003 | [1] | РЭЛАИ-БАТТЭРИ | |
| 3 | 21КА-70010 | [1] | РЭЛАИ-БАТТЭРИ | |
| 4 | 21Н4-01140 | [1] | ПЛАТЭ-КЛИП | |
| 5 | С017-102502 | [2] | БОЛТ-ХЭС | |
| 6 | С403-102002 | [2] | ВАСХЭР-ПЛАИН | |
| 7 | 25Д1-10150 | [2] | БАР-БАТТЭРИ | |
| 8 | 21Н6-21200 | [1] | КАБЕЛЬ (БАТТ РИ-СТАРТЭР) | |
| 8 | 21Н6-21210 | [1] | КАБЕЛЬ (РЭЛАИ-СТАРТЭР) | |
| 9 | 21ЭА-60490 | [1] | КАБЕЛЬ (РИ БАТТ-БАТТ) | |
| 10 | 21Н4-01400 | [1] | КАБЕЛЬ (БАТТ-БАТТ) | |
| 11 | 21Л7-20430 | [1] | КАБЕЛЬ (БАТТ-СВ&ЭАРТХ) | |
| 12 | 21НА-10600 | [1] | СТРАП-ЭАРТХ | |
| 13 | 24Л3-01120 | [1] | КАБЕЛЬ (БАТТ-ЭАРТХ) | БЕЗ СВ МАСТЕРА |
| 15 | 21Л7-10500 | [1] | СВИТКХ-МАСТЭР | |
| 15 | 21Н4-10441 | [1] | СВИТКХ-МАСТЭР | |
| 15 | 21Л7-10500 | [1] | СВИТКХ-МАСТЭР | |
| 15-1. | 21Н4-10441К | [1] | ПЕРЕКЛЮЧАТЕЛЬ КЭИ-МАСТЭР | |
| 16 | 21ЭН-00420 | [1] | СВ ДЭКАЛ-МАСТЭР | |
| 16 | 21Н4-10450 | [1] | СВ ДЭКАЛ-МАСТЭР | |
| 16 | 21Н4-10451 | [1] | ПЕРЕКЛЮЧАТЕЛЬ ДЭКАЛ-МАСТЭР | |
| 16 | 21ЛД-34180 | [1] | ПЕРЕКЛЮЧАТЕЛЬ ДЭКАЛ-МАСТЭР | |
| 22 | 21Н4-01100 | [1] | ПЛАТЭ-СТЭЭРИНГ | |
| 23 | 21Н4-01130 | [1] | ПЛАТЭ-КЛИП | |
| 24 | 21Н5-10050 | [1] | ХОРН-ЛОВ | |
| 24 | 21Н5-10051 | [1] | ХОРН-ЛОВ | |
| 25 | 21Н5-10060 | [1] | ХОРН-ХИГХ | |
| 25 | 21Н5-10061 | [1] | ХОРН-ХИГХ | |
| 27 | 21Н4-20550 | [1] | ХОСЭ-ОУТЛЭТ | С НАСОСОМ ДЛЯ ПОДАЧИ ТОПЛИВА |
| 33 | 21ЭК-10150 | [2] | РЭФЛЭКТОР-СИДЭ | |
| 34 | 21ЭК-10350 | [2] | ПОЛОЖЕНИЕ ЛАМП-ФЛАСХЭР | |
| 34 | 21ЭК-10351 | [2] | ПОЛОЖЕНИЕ ЛАМП-ФЛАСХЭР | |
| 35 | 21ЭК-10120 | [2] | ЛАМП-ХЭАД | |
| 36 | 21ЭК-10130 | [2] | БУЛБ-Х4, 70/75В | |
| 36 | 21ЭК-10131 | [2] | ШАРИК | |
| 42 | Э127-3158 | [1] | НАСОС БАНД-ФУЭЛ | С НАСОСОМ ДЛЯ ПОДАЧИ ТОПЛИВА |
| 46 | 21Н4-01111 | [3] | УПЛОТНЕНИЕ КЛИП-ЭКОНО | |
| 53 | 21Н4-11090 | [1] | ЛАМПА ХАРНЭСС-СТОП | |
| 53 | 21Н4-11091 | [1] | ЛАМПА ХАРНЭСС-СТОП | |
| 53 | 21Н4-12011 | [1] | ХАРНЭСС-ЭСТ, СТОПЛАМП | |
| 55 | С161-040356 | [1] | СКРЭВ-КРОСС Р/РОУНД | |
| 57 | 25Д1-10640 | [1] | АССИ ЗАЖИМА | |
| 58 | 25Д1-10650 | [1] | АССИ ЗАЖИМА | |
| 59 | 21Э9-00170 | [10] | КЛИП-ХАРНЭСС | |
| 60 | С593-000902 | [15] | КЛИП-ХАРНЭСС | |
| 61 | С543-120002 | [1] | КЛАМП-ТУБЭ | |
| 62 | С543-160002 | [2] | КЛАМП-ТУБЭ | |
| 63 | С543-240002 | [7] | КЛАМП-ТУБЭ | |
| 64 | С543-280002 | [2] | КЛАМП-ТУБЭ | |
| 66 | С411-040006 | [4] | ВАСХЭР-СПРИНГ | |
| 67 | С161-040166 | [4] | СКРЭВ-КРОСС Р/РОУНД | |
| 70 | С035-082026 | [14] | БОЛТ-В/ВАСХЭР | |
| 71 | С035-083026 | [2] | БОЛТ-В/ВАСХЭР | |
| 72 | С037-102026 | [25] | БОЛТ-В/ВАСХЭР | |
| 73 | С520-032000 | [3] | КЛАМП-ХОСЭ | С НАСОСОМ ДЛЯ ПОДАЧИ ТОПЛИВА |
| 74 | 21Н4-00770 | [1] | ЗАЖИМ | С НАСОСОМ ДЛЯ ПОДАЧИ ТОПЛИВА |
части конструированы точно для работы в системе соотвествовать основного продукта для представления, надежности, стойкости, производственных затрат и урожайности машины.
1. период гарантии: Гарантия 3 месяцев от даты прибытия. Более длинный период гарантии 6 месяцев смог быть предложен с уровнем более высокой цены.
2. тип гарантии: замена частей которые имеют качественную проблему.
3. гарантия инвалидна в внизу случаи
* Кутомер дает неправильную информацию о заказе
* сила Маджеуре
* неправильные установка и деятельность
* ржавчина из-за неправильного запаса & обслуживания
* сильная коробка или деревянная коробка для компонентов шестерни. Деревянная коробка для собрания коробки передач
* методы доставки: Морским путем, самолетом к местному международному аэропорту, срочным как ДХЛ ТНТ ФЭДЭРАЛ ЭСПРЭСС