1 1/2 " CA45DD Goyen Заменяющий диафрагма клапан AC220V
Капсула импульсного струи CA45DD является сердцем коллектора импульсного струя пыли.Импульсный клапанесли пылесосы блокируются, сопротивление пылесоса увеличивается, а значение дифференциального датчика увеличивается, что легко приводит к износу и отпаданию пылесоса,которые повлияют на нормальную работу пылесоса.
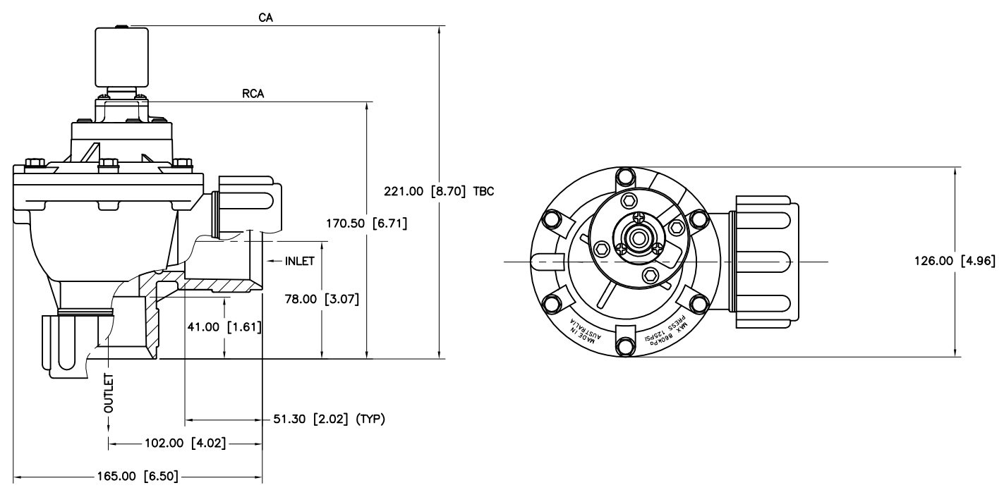
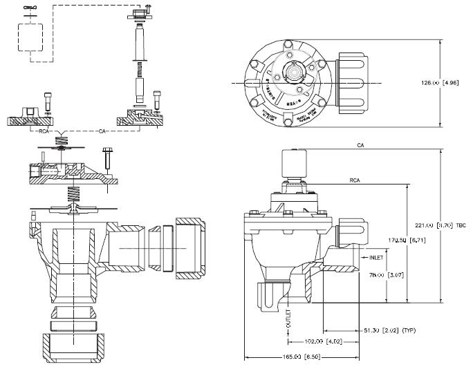
Общее измерение CA45DD Goyen ReplacementДиафрагматический клапан:

Подробная информация о клапане для сбора пыли из орехов CA45DD:

Технические данные клапанов для сбора пыли серии DD типа Goyen:
|
Модель No
|
CA20DD
|
CA25DD
|
CA45DD
|
|
|
Номинальный размер
|
20
|
25
|
45
|
|
|
Размер порта
|
мм
|
20
|
25
|
40
|
|
в
|
3/4
|
1
|
1 1/2
|
|
|
Число диафрагм
|
1
|
1
|
2
|
|
|
Поток
|
Кв
|
12
|
20
|
44
|
|
Резюме
|
14
|
23
|
51
|
|
|
Давление (Psi)
|
от 5 до 125
|
от 5 до 125
|
от 5 до 125
|
|
|
Температура°C
|
NBR
|
-40 до 82
|
-40 до 82
|
-40 до 82
|
|
Витон
|
-29 до 232
|
-29 до 232
|
-29 до 232
|
|


Инструкция по установке пульсовых реактивных клапанов с орехами:

Правильное использование импульсного реактивного клапана CA45DD:
1Импульсный реактивный клапан представляет собой диафрагматический клапан, который сочетается сСоленоидный клапан, пилотный клапан и импульсный клапан, и управляется непосредственно электрическим сигналом.
2Вентиль импульсного реактора не должен быть слишком свободным или слишком плоским, слишком свободным и легко пылесосающим, слишком плоским и легким для тяги.
3. Вентиль импульсного реактора предпочтительно устанавливается перпендикулярно горизонтальной трубе и катушка вверх. Позвольте наклону ± 30°, когда условия не позволяют. В противном случае нормальное использование не гарантируется.
4Стрелка на корпусе клапана импульсного реактивного клапана должна соответствовать направлению потока среды.
