Система комбинированного распределения
Набор источника подачи противопожарного средства под давлением FM200 HFC-227ea используется для защиты двух или более защищенных зон через фиксированные трубопроводы и сосуды.

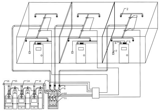
Схема комбинированной распределительной системы
1. Контроллер газа для тушения пожара. 2. Спринклер. 3. детектор пожара (чувствительный температуры). 4. детектор пожара (чувствительный дыма). 5. индикатор дефляции. 6. звуковая и визуальная сигнализация. 7.Кнопка экстренного запуска-остановки. 8. Устройство обратной связи. 9. Выберите клапан. 10. Запустите скобку цилиндра. 11. Запустите группу бутылок с азотом. 12. Стальной скобки цилиндра. 13. Сборная труба.14 Устройство системы пожаротушения FM200 с гептафторпропаном под давлением ожидания.15Запустите рельефный клапан.16. Защитный клапан
(I) Требования к продукту
1Все компоненты единой системы должны быть прочно закреплены и надежно соединены, компоненты должны быть установлены в правильном положении, общая компоновка должна быть разумной,и это должно быть легко использовать, осматривать и обслуживать.
2Спецификации тех же функциональных компонентов в системе должны быть едиными (за исключением выборного клапана и сопла).плотность заполнения или давление заполнения каждого контейнера для хранения огнетушителей должны быть одинаковыми;.
Способ запуска: электрический ручной запуск
Когда переключатель преобразования находится в положении "ручное", система пожаротушения находится в ручном состоянии.и управляющий хост запускает звуковую и световую сигнализацию внутри и снаружи, чтобы предупредить о пожареВ это время нажмите кнопку "Чрезвычайный запуск" за пределами зоны защиты или на контроллере, чтобы запустить систему пожаротушения.запустить систему пожаротушения для выпуска огнетушителя, и внедрить пожаротушение.
Примечание: Независимо от того, находится ли устройство управления в автоматическом или ручном состоянии, нажатие кнопки "Чрезвычайный запуск" позволяет запустить систему пожаротушения.
Введение компании:
Guangzhou Rongan Fire Protection Equipment Co., Ltd. является профессиональным производителем средств противопожарной защиты, объединяющих услуги исследований и разработок, производства, проектирования и продаж. The company has experts from the national fire protection industry standards committee and a group of professional technical service teams with more than ten years of experience in the fire protection industry, и не пожалеет усилий, чтобы предоставить вам самые интимные и профессиональные комплексные технические решения для инженерных средств противопожарной защиты.Продукция серии "Rongxiao", произведенная компанией, прошла национальную обязательную сертификацию продукции и национальный центр инспекции системы пожаротушения., с надежным качеством и стабильной работоспособностью, и завод прошел сертификацию системы качества ISO9001.
Часто задаваемые вопросы
Q1: Вы производитель или торговая компания? A1: Мы производители.
Q2: Сколько длится время доставки? A2: 10 дней, которые можно договориться в соответствии с количеством.
Вопрос 3: Как справиться с неисправностью? Вопрос 3: В течение гарантийного периода мы предоставим вам удаленный план аварийных действий в рабочее время.Компания будет бесплатно заменять запасные части или полные машины, которые вышли из строя из-за дефектов или проблем с качеством.