30 МПа IG541 Система подавления огня от инертных веществ
Описание
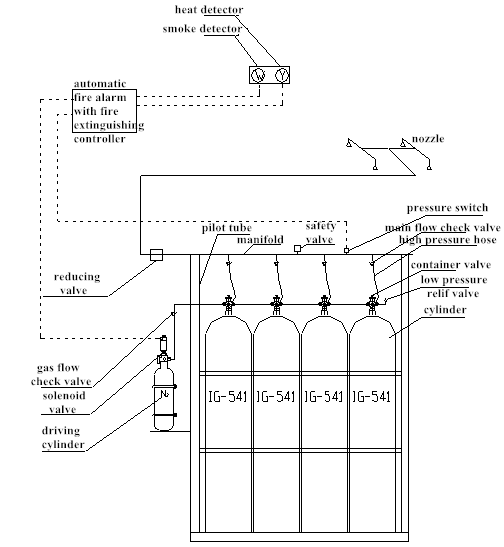
Система автоматического пожаротушения IG541, другой тип системы пожаротушения с чистыми агентами,предназначен для быстрого и эффективного тушения пожаров без повреждения деликатного оборудования или оставления следовМетод использует смесь трех природных газов - азота, аргона и углекислого газа - для создания непроводящего, непроводящего и экологически безопасного огнетушителя.
Система IG541 часто используется для обеспечения безопасности таких мест, как центры обработки данных, комнаты серверов, коммуникационные сооружения и комнаты управления.При обнаружении тепла или дыма механизм быстро рассеивает огнетушительное вещество в помещенииСистема обнаружения пожара включает систему.
Система IG541 тушит пожар, снижая содержание кислорода в замкнутом пространстве до уровня, ниже которого не может продолжаться сгорание.Система предназначена для быстрого и эффективного тушения пламени с минимальным количеством нарушений здания или защищенного оборудования..
Конструкция системы IG541 проста и надежна, что позволяет легко устанавливать и обслуживать.Система очень гибкая и может быть сконфигурирована для удовлетворения различных требований пожарной защиты..
Система IG541 имеет преимущество в том, что является экологически безопасным вариантом пожаротушения, поскольку имеет низкий потенциал для разрушения озонового слоя и глобального потепления.Система безопасна для использования в оккупированных помещениях, поскольку химическое средство не токсично и не производит опасных побочных продуктов..
В целом, автоматическая система пожаротушения IG541 минимизирует повреждения и время простоя, обеспечивая своевременную и эффективную защиту незаменимых объектов и оборудования.
Параметры
| Нет, нет, нет. | Спецификация | Технический параметр | |
| 1 | Рабочее давление | 20 МПа | 30 МПа |
| 2 | Модель устройства | QMH20/80 | QMH30/80 |
| 3 | Мощность | 80 литров | 80 литров |
| 4 | Наполнительная мощность газа | 22.37 кг | 33.56 кг |
| 5 | Коэффициент заполнения | 00,29 кг/л | 00,42 кг/л |
| 6 | Внешний диаметр цилиндра | Φ286 мм | Φ267 мм |
| 7 | Высота цилиндра | 1910 мм | 1770 мм |
| 8 | Максимальное рабочее давление | 23.2МПа | 360,6 МПа |
| 9 | Минуты рабочего давления | 18 МПа | 27 МПа |
| 10 | Время опрыскивания | ≤ 120 с | |
| 11 | Сила | DC24V/1.6A | |
| 12 | Давление азота при управлении | 60,0±1,0Mpa ((20°C) | |
| 13 | Состояние резервирования помещения для контейнеров | температура: 0~50°C | |
Применение
Танк для выщелачивания, сушильное оборудование, кабина для распыления краски, комната для электроинструментов, центр управления, библиотека, архивы, сокровищница культурных артефактов и т.д.Это всего лишь несколько примеров доступных номеров..
Пакеты
Мы всегда сначала упаковываем его в полипеновую пленку, а затем кладем в деревянный ящик. Иногда, чтобы удовлетворить требованиям клиентов или безопасности, мы делаем поддоны для товаров.

Преимущества
За исключением металлических пожаров, одним из преимуществ агента с точки зрения его описания является то, что он может быть использован для всех классов классов пожаров.Огонь не оставляет следов загрязняющих веществ..
Другой - это опыт системы пожаротушения IG541 в обращении с критически важными активами или оборудованием.Это эффективная система пожаротушения, которая также имеет разумную цену..
Устройство имеет встроенный механизм тушения, который позволяет быстро потушить пожар, предпочтительно менее чем за 10 секунд.Это предполагает, что все агенты будут освобождены таким образом немедленноЭто означает, что в случае возникновения пожара, вы сможете выйти из дома и выйти из дома.Будет достаточно времени, чтобы эвакуировать всех..
Это позволит безопасно управлять многими зонами одной системой, что приведет к значительной экономии затрат для больших и многочисленных зон.
Диаграмма подражания
Многоцилиндры для одной зоны

Многоцилиндры для нескольких зон

Введение компании
Guangzhou Xingjin Fire Equipment Co., Ltd., окруженный удобным транспортом и красивой средой, расположен в Гуанчжоу,который играет важную роль в коммуникации между Китаем и миромМы являемся производителем, и мы посвящаем себя изучению и разработке продуктов HFC-227ea (FM200) с нашей профессиональной и зрелой командой, включая команду разработчиков программ,Опытная монтажная командаВ настоящее время наши популярные продукты FM200 широко используются, такие как система пожаротушения трубной сети FM200,пожарная система типа шкафа FM200, автоматический огнетушитель FM200
В результате высокого качества продукции и услуг, а также хорошей репутации,наша компания хорошо воспринята клиентами в Китае.

Почему выбирать нас?
• 5 лет гарантии качества
• Xingjin работает в системе управления высокой эффективностью
• Усовершенствованное оборудование и профессиональные инженеры гарантируют, что все продукты будут удовлетворительными.
• Мы предоставляем техническую поддержку и обслуживание 8×6 часов.
Послепродажное обслуживание
• У нас есть эффективные продажи и послепродажная команда, чтобы обещать, что все вопросы клиентов будут решены вовремя.
• Мы предоставляем техническую поддержку и обслуживание 8×6 часов.
Частые вопросы
Вопрос 1: Вы производитель или торговая компания?
A1: Мы производитель.
Q2: Есть ли OEM-продукты?
A2: Да, мы приветствуем ваш собственный дизайн и чертеж.
Q3: Где находится ваша фабрика? Могу ли я посетить ее?
A3: Наш завод расположен в Шилоу, Панью, Гуанчжоу, Гуандун, Китай.
Мы всегда рады и ждем вашего визита.
В4: Как я могу добраться до вашей фабрики?
Ответ 4: Из-за удобства передвижения здесь вы можете приехать на такси или на метро. Если вы приехали сюда на метро, вам нужно сесть на линию 4 и выйти на станции Шики.Тогда выходи из станции за отказ.126-й автобус и выйди на станции Юэси.