Пневматический вентилированный управляющий шаровой клапан
Описание продукта:
Пневматический клапан управления шаровым клапаном на V-отметке/пневматический
Описание:
Пневматический клапан управления V-отрезком iМодулирующаяустройстворегулировать и отрезать высокую температуру
Пары, средний потокПротивоотталкивающий и самоочищающийся, например, металлургическая целлюлоза, бумажная целлюлоза.
Спецификация:
| Входной сигнал | 4 ~ 20 мА постоянного тока | |
| Выходное давление | 1.4~7kgf/cm2 ((0,14~0,7Mpa) | |
| Инсульт | 0o~90o | |
| Импеданс | Макс.460Ω/20mA постоянный ток | |
| Воздушное соединение | ПТ ((НПТ) 1/4 | |
| Подключение датчика давления | PT (((НПТ) 1/8 | |
| Проводка | PT1/2 ((G1/2) | |
| Повторяемость | ± 0,3% F.S. | |
| Обстановка | Операционная температура. | (-30°C~85°C) /(-22~185oF) |
| Температура | Взрывозащитная температура. | (-40°C~60°C) T5/(-40~40°C) T6 |
| Линейность | ± 0,5% F.S. | |
| Степень задержки | ± 0,5% F.S. | |
| Чувствительность | ± 0,2% F.S. | |
| Потребление воздуха | Меньше 2LPM ((Давление воздуха=1,4K) | |
| Коэффициент потока | 70 LPM | |
| Внешние свойства | быстрый переключатель, линейный, EQ%, определенный пользователем ((16 баллов) | |
| Материал | Алюминий, литой на литье | |
| Уровень защиты | IP68 | |
| Уровень взрывостойкости | Exia IIC T6/T5 | |
| Вес | 1.5 кг ((3.31b) |
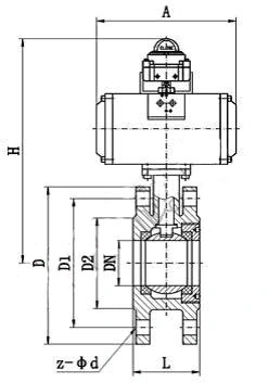
Фигура и размер соединения:

|
Размер клапана DN ((mm) |
Размер ((мм) | ||||||
| Л | D | D1 | D2 | В. | F | Z-φd | |
| 15 | 35 | 95 | 65 | 45 | 14 | 2 | 4-M12 |
| 20 | 38 | 105 | 75 | 55 | 14 | 4-M12 | |
| 25 | 42 | 115 | 85 | 65 | 14 | 4-M12 | |
| 32 | 50 | 135 | 100 | 78 | 16 | 4-M16 | |
| 40 | 60 | 145 | 110 | 85 | 16 | 4-M16 | |
| 50 | 70 | 160 | 125 | 100 | 16 | 3 | 4-M16 |
| 65 | 95 | 180 | 145 | 120 | 18 | 4/8-M16 | |
| 80 | 118 | 190 | 160 | 135 | 20 | 8-M16 | |
| 100 | 140 | 215 | 180 | 155 | 20 | 8-M16 | |
| 125 | 175 | 245 | 210 | 185 | 22 | 8-M16 | |
| 150 | 210 | 280 | 240 | 210 | 24 |
8-M20
|
|
Фигура потока нескольких типичных форм сечения и характеристик потока

Упаковка и перевозка
1.Упаковка: внутри с пузырьком, снаружи с картонной коробкой идеревянныеДело.
2Перевозка: морским, воздушным, железнодорожным транспортом.
Если у вас есть другие требования, пожалуйста, не стесняйтесь сказать нам.