OMD-17.5, OMD-24
Надземный поляк установил основной измеряя блок
Этот тип измеряя коробки на открытом воздухе типа сух трехфазный основной измеряя блок. Трансформатор средств-напряжения тока измеряя собран 3 однофазными совмещенными трансформаторами. Каждый однофазный совмещенный трансформатор содержит 1 набор катушки CT и 1 набор катушки VT, циклического заключения отливки вакуума эпоксидной смолы (CEP) твердого, с превосходными проведением изоляции и hydrophobicity, поверхность устойчив к корозии кислоты и алкалиа, загрязнению, и УЛЬТРАФИОЛЕТОВОМУ. Соответствующее для на открытом воздухе надземной линии установки и соединения к коммунальным системам энергоснабжения. Измеряя коробка соединяла вторичное руководство трансформатора с распределительной коробкой централизованного терминала. Герметизируя дизайн распределительной коробки имеет порт выввода, который нужно соединиться с коробкой метра, которая быстра установить. Соответствующее для оборудования в городской и сельской сети распределения силы с maximal напряжением тока не больше чем 17.5kV для измерения электрический энергии измерять, течения и напряжения тока.
параметры 1.General:
| Нет. | деталь | блоки | спецификация |
| 1 | Самое высокое напряжение тока для
| kV | 17,5 |
| 2 | Расклассифицированная частота (fR) | Hz | 50, 60 или 50/60 |
| 3 | Расклассифицированный импульс молнии
| kV | 95 kV, 110 kV |
| 4 | Расклассифицированная сил-частота
| kV | 38 |
| 5 | Расклассифицированная сил-частота
| kV | 3 |
| 6 | Номер CTs и VTs | ПК | 3VT+3CT |
| 7 | Стандарт | / | 61869-1:2007 IEC, 61869-2:2012 IEC 61869-3:2011 IEC, 61869-4:2013 IEC IEEE (ANSI) C57.12-2016 |
2.Function и применение
Надземный поляк установил основной измеряя блок исполняет с самыми последними применимыми промышленными стандартами и местный и или национальным электрическим кодом (как IEC, IEEE (ANSI), КОНСЕРВНАЯ БАНКА, ГОСТ (ГОСУДАРСТВЕННЫЙ СТАНДАРТ), CEF). Он использован для трехфазных надземных управления измерения энергии энергосистемы и системы управления автоматизации распределительной сети, основное бортовое измерение более точно, и потери электропитания линии можно эффектно измерить для уменьшения потерь.
особенности 3.Main
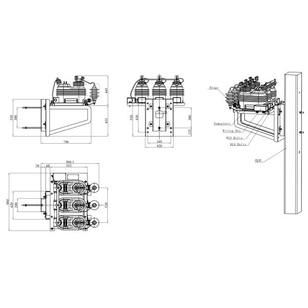
средний трансформатор напряжения тока 3.1The измеряя блока составлен 3 однофазных совмещенных трансформаторов, который сохраняет космос установки и может быть установлен сразу на outdoors поляка, который удобен и быстр;
распределительная коробка 3.2The измеряя блока установлена с блоком теста терминальным и подводящим проводом соединенными с трансформатором, и структура уплотнения замка распределительной коробки с анти--электричеством крадя дизайн. Измеряя коробку можно также оборудовать с коробкой электрического счетчика на поляке;
коробка 3.3The сделана из коррозионностойкой нержавеющей стали или стали соответствующего представления низкоуглеродистой с защитным покрытием. Герметизируя дизайн погодостоек, кислоты и алкалиы коррозионностойкий, и УЛЬТРАФИОЛЕТОВЫЙ устойчив;
средний трансформатор напряжения тока 3.4The изолирован с заключением эпоксидной смолы твердым и имеет превосходное диэлектрическое и механическое представление. Он свободен от масл, свободен от газ и не требующ ухода, соотвествующ безопасной работы и охраны окружающей среды.
3.5The CT средним трансформатора совмещенного напряжением тока можно установить согласно двойным коэффициентам трансформации, и VT оборудован с анти--короткими приборами предохранения от цепи и перегрузки по мере необходимости для избежания горения и взрыва причиненных коротким замыканием и перегрузкой VT.
основное соединение 3.6The принимает медный контактный стержень и терминальную струбцину и может быть оборудовано с терминальными соединителями с соответствуя областью согласно требованию к потребителя. Arrester молнии можно выбрать по мере необходимости.
параметры 4.Technical.
Спецификации настоящего трансформатора
| Никакой | Деталь | Спецификация |
| | Расклассифицированное основное течение | 5A до 800A |
| | Расклассифицированное вторичное течение | 5A или 1A |
| | Расклассифицированное непрерывное термальное течение | 120%, 125%, 150%, 200%, etc. |
| | Расклассифицированное течение короткого периода времени (Ith) (восходящий поток теплого воздуха 1 во-вторых) | 80xIpr, 100xIpr |
| | Расклассифицированный машинный ток (Idyn) | 2.5xIth |
| | Требуемая производительность (VA) | 5,10,12.5, 15,20 |
| | Класс точности | 0.2S, 0,2, 0.5S, 0,5, 1 измеряя |
| | Фактор безопасностью аппаратуры (FS) | 5,10,20 |
| | Применимый стандарт | IEC: 61869-1&2 |
Спецификации трансформатора напряжения тока
| Никакой | Деталь | Спецификация |
| | Расклассифицированное основное напряжение тока (v) | 13200/√3,13800/√3, 15000/√3,7200,8400 |
| | Расклассифицированное вторичное напряжение тока (v) | 100/√3,110/√3, 115/√3, 120/√3, 110 115 120 |
| | Расклассифицированный фактор напряжения тока | 1.2/Continuous 1.5/30s, 1.9/30s, 1.9/8h 1.5/30s, 1.9/30s, 1.9/8h |
| | Стандартное соединение | Соединение Y-Y |
| | Требуемая производительность (VA) | 15,20,25,30,50,75 |
| | Класс точности | 0,2, 0,5, 1,3 измеряя |
| | Термальная тягота (VA) | 500 |
| | Применимый стандарт | IEC: 61869-1&3 |
Если параметр спросил превышает ряд вышеуказанной таблицы, его можно определить после переговоров с нашей компанией.
5.Dimensions и связывать проволокой схематическую диаграмму.


Выборочную коробку 1 метра (IEC) можно изготовить согласно необходимым размерам

Выборочную коробку 2 метра (ANSI) можно изготовить согласно необходимым размерам

инструкции 6.Special.
Компания может конструировать и изготовить специально согласно особенным требованиям клиентов.