ПРИМЕНЕНИЕ
Обеспечивает энергию и рабочие сбережения для обработки еды и напитка, холодильных установок и распределения.

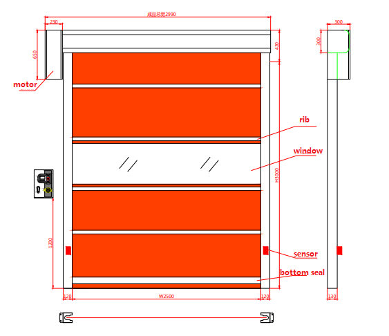
ДАННЫЕ ПО ДВЕРИ
быстрый ход свертывает вверх дверь уменьшает охладить стоимости энергии.
переменное управляющее устройство частоты обеспечило стоп мягкого старта мягкий.
изолированный усиленный занавес винила терпит холодные температуры
мягкое дно с краем безопасности, отпуски на ударе и автоматические возвраты
проводники удерживания улучшают стабильность и стойкость занавеса
алюминиевые проводники с интегрированными photoeyes, прокладками носки и уплотнениями петли ткани
стандартная предусматрива стального крена и опционный клобук оператора с белым финишем.
опционная не-нагретая система занавеса воздуха, нагретая или
соответствующий для применений до 13' широко и 18' 6" максимум.

Особенности
1)Безопасность
датчик радиолокатора, photosensor, сумка безопасности полетов включает
2)Закрепленность
Щетки уплотнения алюминиевого сплава добавлены к любой стороне пути скольжения, уменьшая шум и увеличивающ закрепленность, гибкое знамя PVC в основании, делающ его для того чтобы прильнуть ко всем видам неровной земли близко и соотвествующ уплотнения.
3)Сила
СЕРВОПРИВОД или ЗАШИТЬ мотор, 380V, 50HZ, силу IP55: 0.75KW-----1.50KW
4)Скорость открытия и закрывать:
Скорость раскрытия: 0.8m-1.6m/s (регулируемое), 1000-1500 раз/день
5)Распределительный ящик
Трансформатор частоты бренда Shihlin, управление PLC бренда KEWEI программируя, автомат защити цепи, шестерня взрывателя и реле могут быть совместимы с общим протектором.
6)Структура двери:
Дверная рама: 2.0mm гальванизировали стальной лист (стальные листы) и высыхающий при нагреве в печи лак

echnical параметр:
| Прочность на растяжение (обруч/уток) | 5700/5100N/5m |
| Срывая прочность (обруч/уток) | 900/800N |
| Температура пользы | -30°C- +70°C |
| Уровень защиты от огня | Французское стандартное NF-P92-503 Или немецкое стандартное DIN M2 4120 B1 |
