Одной из ключевых особенностей этих дверей являются их теплоизоляционные свойства.который помогает держать холода и поддерживать стабильную внутреннюю температуруЭто делает их идеальными для использования на складах, в распределительных центрах и других объектах, где важно контролировать температуру.
Эти двери не только теплоизолируют, но и устойчивы к воздействию погодных условий, поэтому они могут выдерживать суровые погодные условия, не разрушаясь.,которая включает в себя высокоскоростную спиральную дверь металлической роликовой жалюзи, которая обеспечивает плотное уплотнение от элементов.
Эти двери изготовлены из прочной стальной конструкции, поэтому они выдерживают тяжелое использование и устойчивы к износу.Это делает их идеальными для использования в районах с большим трафиком, где они будут часто открываться и закрываться.
Еще одна важная особенность этих дверей - их безопасность. Они спроектированы для соблюдения строгих стандартов безопасности и оснащены такими средствами безопасности, как датчики и кнопки аварийной остановки.Это гарантирует безопасность их использования и снижает риск несчастных случаев или травм..
В целом, промышленные высокоскоростные подкатывающие двери являются надежным и эффективным решением для предприятий, которым требуется высокоскоростная точка входа и выхода.Они широко используются в различных отраслях промышленности, включая производство, складирование и логистику, и являются популярным выбором для предприятий, которым необходимо поддерживать контроль температуры и защищать свои продукты от стихийных бедствий.

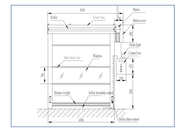
| Технический параметр | Описание |
|---|---|
| Наименование продукта | Скоростные двери для занавесок из ПВХ |
| Охрана | Высокий |
| Уменьшение шума | Да, да. |
| Устойчивость к погоде | Да, да. |
| Особенность | Теплоизоляция |
| Установка | Легко. |
| Безопасность | Да, да. |
| Операция | Ручная/автоматическая |
| Изоляция | Да, да. |
| Размер | Настраиваемый |
| Цвет | По заказу |
| Описание | Большие размеры Быстрое жалюзи Дверь Эффективная изоляция Быстрый ответ, промышленная высокая скорость Заворачивать Двери высокой скорости Спиральная дверь Металлическая роликовая жалюзи Дверь широко используется |

Эти высокоскоростные роликовые дверцы предназначены для промышленных применений, таких как склады, фабрики и складские помещения.Они идеально подходят для районов, где требуется быстрый и эффективный доступВ зависимости от конкретных потребностей пользователя, высокоскоростные ручные или автоматические дверные прокатки из ткани могут работать.
Быстрые роликовые двери DESEO HSD2000 доступны в индивидуальных размерах, чтобы соответствовать любому пространству.Двери подходят для различных отраслей, включая продукты питания и напитки, фармацевтику, автомобильную промышленность и логистику.
Минимальное количество заказов на этот продукт составляет 1 единицу, а цена составляет 980 долларов США за единицу.Двери упакованы в фанеру для безопасной транспортировки и срок доставки составляет 7-20 дней в зависимости от количества заказанногоУсловия оплаты T/T, и способность поставки 200 в месяц.
Двери DESEO HSD2000 с быстрыми роликовыми дверями имеют 2-летнюю гарантию, обеспечивающую спокойствие пользователей.Нужно ли поддерживать контроль температуры, повысить эффективность, или просто повысить безопасность и охрану вашего объекта, эти двери являются идеальным решением.
В целом, быстрые роликовые двери DESEO HSD2000 являются высококачественными промышленными дверными решениями, которые идеально подходят для широкого спектра применений.и настраиваемые размеры, эти двери - отличная инвестиция для любого бизнеса.
Настроите свою высокоскоростную спиральную дверь DESEO HSD2000 из Китая с помощью наших услуг по настройке продукта:
Наши промышленные высокоскоростные рулонные двери, также известные как быстродействующие роликовые дверцы или металлические роликовые дверцы, широко используются в промышленных приложениях.Эти двери идеально подходят для промышленной среды.Мы также предлагаем услуги по настройке дверных решеток с дистанционным управлением.

Упаковка продукта:
Перевозка:
