JTGT-C Грузовая тележка с редуктором
Приводимая в действие путем натягивания ручной цепи, грузовая тележка с редуктором JTGT-C эффективно перемещается по нижнему краю двутавровой балки. Ее универсальность делает ее подходящей для использования в различных условиях, таких как заводы, шахты, причалы, доки, склады, строительные площадки и машинные залы. Эта тележка специально разработана для установки машинного оборудования и подъема грузов.
Разработанная для рабочих сред без электропитания, она уделяет первостепенное внимание безопасности и простоте обслуживания, отличаясь компактной структурой и небольшим размером упаковки. Расстояние между колесами легко регулируется, что делает ее совместимой с различными типами двутавровых балок. Обладая высокой эффективностью передачи, требующей минимальной выходной мощности, она может маневрировать с небольшим радиусом поворота. Шарнир соединяет левую и правую боковые пластины, обеспечивая равномерное распределение усилия.
Для обеспечения безопасности не допускайте превышения номинальной грузоподъемности ручной тележки. Строго избегайте работы или прохода под грузом во избежание несчастных случаев. Регулярно наносите смазку на подшипники и поверхности рельсов, одновременно проверяя наличие ослабления крепежа. При обнаружении аномалий немедленно прекратите использование продукта, выясните причину и устраните ее. Регулярное техническое обслуживание необходимо для оптимальной функциональности.

| Модель | 1т | 2т | 3т | 5т | 10т | ||
| Номинальная грузоподъемность | т | 1 | 2 | 3 | 5 | 10 | |
| Испытательная нагрузка | кН | 12.5 | 25 | 36.8 | 61.3 | 122.5 | |
| Высота подъема | м | 3 | |||||
| Усилие на цепи для подъема полного груза | Н | 44 | 80 | 65 | 90 | 195 | |
| Мин. радиус кривой | м | 1 | 1.1 | 1.3 | 1.4 | 1.7 | |
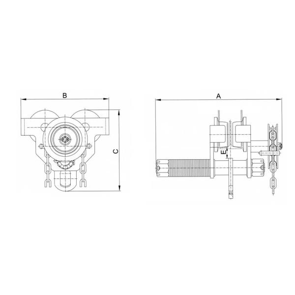
мм Размеры |
A | Pyion | 390 | 400 | 430 | 444 | 489 |
Удлиненный pyion |
492 | 502 | 532 | 544 | 584 | ||
| B | 260 | 300 | 345 | 390 | 470 | ||
| C | 239 | 288 | 336 | 393 | 500 | ||
| E | 32.5 | 31 | 35 | 37 | 45 | ||
| F | ≈3 | ||||||
| H | 136 | 161 | 185 | 220 | 280 | ||
мм Регулируемая ширина балки |
M | Pyion | 64-203 | 88-203 | 102-203 | 114-203 | 125-203 |
Удлиненный pyion |
102-305 | 102-305 | 102-305 | 108-305 | 117-305 | ||
Дополнительный вес на метр дополнительного подъема |
кг | ≈1 | |||||
| Вес нетто | кг | Pyion | 19.9 | 28.5 | 46 | 57 | 103 |
Удлиненный pyion |
21.1 | 30.6 | 49.8 | 60.8 | 108.5 | ||