Электрический подъемник CL-E.pdf
Электрический наборщик (в положении стоя) CL1532E Номинальная тяговая масса 1500 кг Высота подъема 3200 мм Электрический наборщик
Характеристики продукта
1Система привода с постоянным магнитом, небольшие размеры, легкий вес, низкие потери, высокая эффективность;
2Встроенное зарядное устройство для удобства клиентов;
3.Единая цепь и узкая ширина дверной рамы дают оператору широкое видение, гарантируя безопасность работы;
4.Оснащен высокой мощностью и надежной производительностью насосной станции подъема, мощный баланс подъема груза;
5- безотказные от технического обслуживания батареи могут быть заменены без использования других инструментов, что является более удобным;
6.Весь автомобиль компактный, ширина канала меньше, подходит для всех видов узких небольших складов.
| Характеристики | ||
| Модель | CL1532E | |
| Силовая установка | Электрические | |
| Операция | Стоя на | |
| Номинальная тяговая масса | Q(t) | 1.5 |
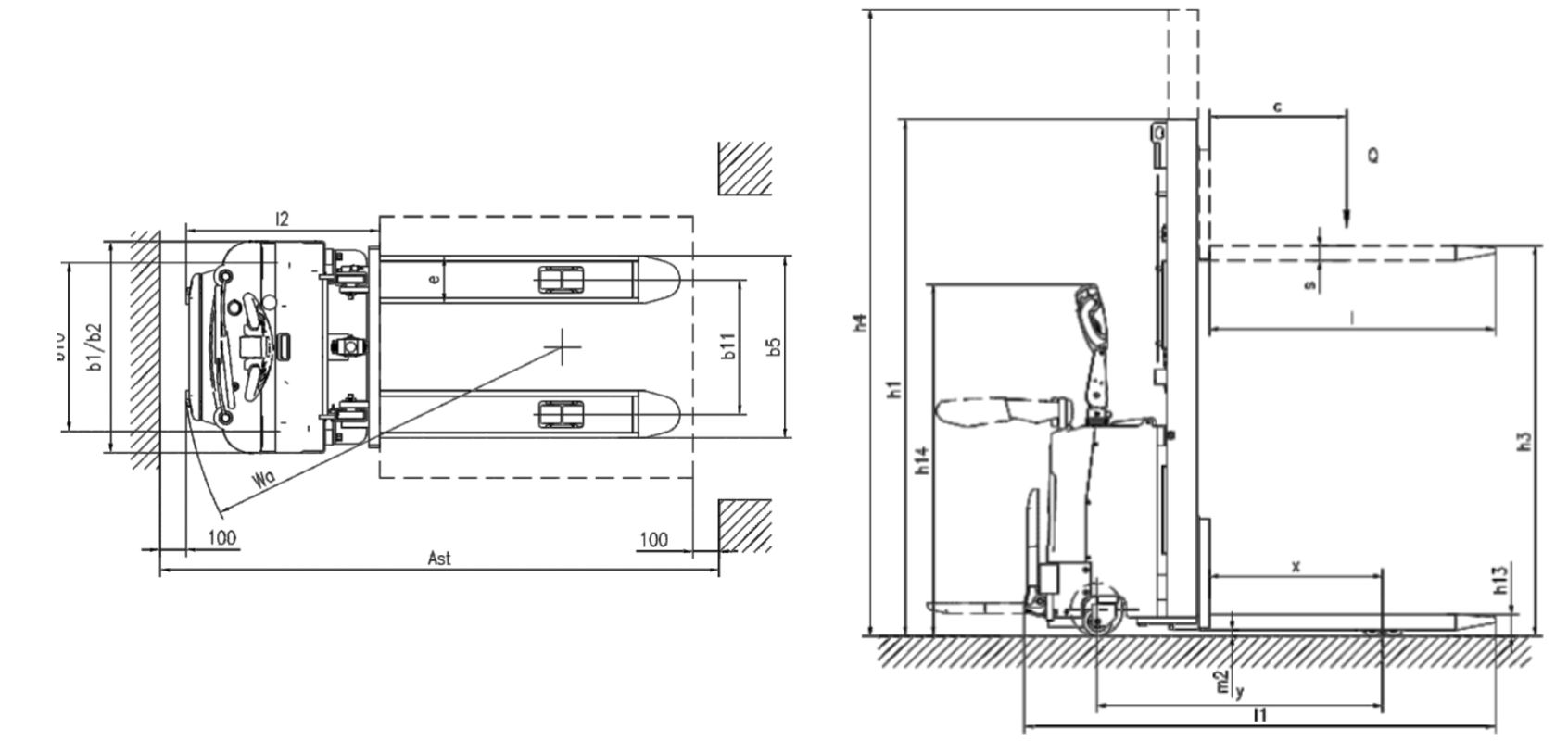
| Центр груза | c(mm) | 600 |
| Центр оси к лицевой части вилки | x(мм) | 695 |
| Основа колеса | y ((mm) | 1148 |
| Масса эксплуатации с аккумулятором | в кг | 740 |
| Колеса/Пневматика | ||
| Тип колес | ПВ | |
| Размер привода | Φ×w(мм) | Φ210×70 |
| Размер колеса подшипника | Φ×w(мм) | Φ80×70 |
| дополнительные колеса (размеры) | Φ×w(мм) | Φ115×55 |
| Колеса, номер передний/задний (с приводом X) | 1,4/2 | |
| Ширина рельса | b10 ((мм) | 646 |
| Ширина рельса | b11 ((мм) | 390/515 |
| Размеры | ||
| Высота мачты, пониженная | h1 ((mm) | 2127 |
| Подъем | h3(мм) | 3200 |
| Высота мачты, продленная | h4 ((мм) | 3687 |
| Общая высота ((с ручкой) | h14 ((мм) | 1040/1415 |
| Сниженная высота | h13 ((мм) | 86 |
| Общая длина | 1 мм) | 1890 |
| Длина до вилки | 1 2 мм) | 740 |
| Общая ширина | b1/b2 ((мм) | 808 |
| Размеры вилки | s/e/l ((mm) | 60/180/1150 |
| Ширина вилок | b5 ((мм) | 570/695 |
| Минимальный просвет | m2 ((мм) | 25 |
| Ширина прохода с поддоном 1000x1200 через вилки | Аст ((мм) | 2110 |
| Ширина прохода с поддоном 800x1200 вдоль вилок | Аст ((мм) | 2160 |
| Мин.Радиус поворота | Да, да, да. | 1455 |
| Производительность | ||
| Скорость движения,нагруженная/ненагруженная | (km/h) | 4.2/4.5 |
| Скорость нагрузки, с/без нагрузки | (мм/с) | 90/130 |
| Снижающая скорость, с/без нагрузки | (мм/с) | 105/100 |
| Максимальная способность к подъему с/без нагрузки | (%) | 3/6 |
| Сервисное торможение | Электромагнитные | |
| Драйв | ||
| Двигатель, 60 минут | (кВт) | 0.75 |
| Направление двигателя на S3 15% | (кВт) | 2.2 |
| Напряжение батареи/номинальная емкость | (V/Ah) | 2×12/120 |
| Масса батареи ((± 5%) | (в кг) | 2х35 |
| Прочие | ||
| Тип управления приводом | DC | |
| Уровень шума в ухе оператора | (dB(A)) | ≤ 70 |

