Электрический наборщик (пешеходный) CL2030GF Номинальная тяговая масса 2000 кг Высота подъема 3000 мм Электрический наборщик
Электрический подъемник CL2030GF.pdf
Электрический наборщик (пешеходный) CL2030GF Номинальная тяговая масса 2000 кг Высота подъема 3000 мм Электрический наборщик
Характеристики продукта
1Мощный двигатель переменного тока, плюс коробка передач Avolve обеспечивает превосходную производительность при ускорении, повышает эффективность работы и экономит энергию.
2Импортированный контроллер переменного тока, высокопроизводительный драйвер MOSFETS, высокая частота, эффективный, тихий, имеет непрерывное регулирование скорости и функцию противопотепления.Улучшенные функции защиты от температуры и компенсации для достижения тепловой защиты и стабильной производительности;
3.Ключевой переключатель и электрический счетчик, рог, кнопка вверх и вниз, переключатель скорости черепахи интегрированы в ручку управления, легкая в эксплуатации;
4.Работа ручки - это долгосрочная конструкция пешеходных транспортных средств в соответствии с эргономическими принципами,удобная эксплуатация;
5- конструкция бокового водителя, эффективное сокращение рабочих каналов, небольшой радиус поворота, лучшее поле зрения, подходит для работы в узком пространстве.
| Характеристики | ||
| Модель | CL2030GF | |
| Силовая единица | Электрические | |
| Операция | Пешеходный | |
| Номинальная тяговая масса | Q ((kg) | 2000 | 
| Центр груза | c(mm) | 600 | 
| Центр оси к лицевой части вилки | x(мм) | 672 | 
| Основа колеса | y ((mm) | 1384 | 
| Масса эксплуатации с аккумулятором | в кг | 966 | 
| Колеса/Пневматика | ||
| Тип колес | ПВ | |
| Размер привода | Φ×w(мм) | Φ230×75 | 
| Размер колеса подшипника | Φ×w(мм) | Φ80х70 | 
| дополнительные колеса (размеры) | Φ×w(мм) | Φ150х58 | 
| Колеса, номер передний/задний (x=приводные) | 1х+1/4 | |
| Ширина рельса | b10 ((мм) | 526 | 
| Ширина рельса | b11 ((мм) | 390/515 | 
| Размеры | ||
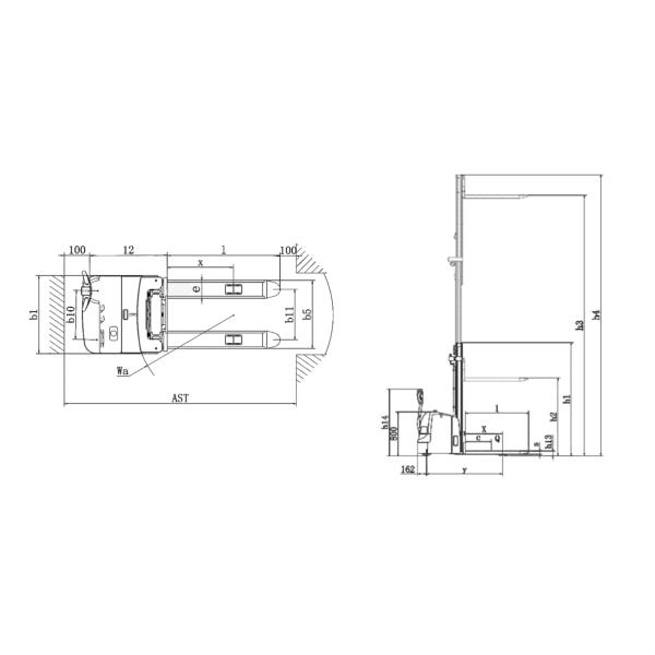
| Свободная подъемная система | h1(мм | 1991 | 
| Подъем | h2 (мм) | 166 | 
| Высота мачты, продленная | h3 (мм) | 3000 | 
| Высота сиденья/стационарной платформы | h4 ((мм) | 3408 | 
| Общая высота ((с ручкой) | h14 ((мм) | 870/1200 | 
| Уменьшенная высота вилки | h13 ((мм) | 86 | 
| Общая длина | 1 мм) | 2022 | 
| Длина до вилки | 1 2 мм) | 872 | 
| Общая ширина | b1/b2 ((мм) | 795 | 
| Размеры вилки | s/e/l (мм) | 60/180/1150 | 
| Ширина грузовиков | b5 ((мм) | 570/695 | 
| Минимальный просвет | m2 ((мм) | 26 | 
| Ширина прохода с поддоном 1000x1200 через вилки | Аст ((мм) | 2435 | 
| Ширина прохода с поддоном 800x1200 вдоль вилок | Аст ((мм) | 2412 | 
| Мин.Радиус поворота | ВВ (мм) | 1550 | 
| Производительность | ||
| Скорость движения,нагруженная/ненагруженная | (km/h) | 40,042 | 
| Скорость подъема с/без нагрузки | (мм/с) | 80/210 | 
| Снижающая скорость, с/без нагрузки | (мм/с) | 152/160 | 
| Максимальная способность к подъему, с кодом или без него | (%) | 4/10 | 
| Сервисное торможение | Электромагнитные | |
| Драйв | ||
| Двигатель, 60 минут | (кВт) | 1.5 | 
| Нагрузка на подъемный двигатель при S3 15% | (кВт) | 3.0 | 
| Напряжение батареи/номинальная емкость | (V/Ah) | 24/210 | 
| Масса батареи (±5%) | (в кг) | 195 | 
| Прочие | ||
| Тип управления приводом | Кондиционер | |
| Уровень шума у оператора | (dB(A)) | ≤ 70 | 
| Тип рулевого управления | Механическое руление | 

