Двойник HV MV GW5 126KV высоковольтный зарывая изолирующ переключатели разъединения для на открытом воздухе станции
Переключатель разъединения GW5:
Технические данные:
| Никакой | Деталь | Технические параметры | |
| 1 | 145 | ||
| 3 | 630,1250,1600,2000,2500,3150,4000 | ||
| 4 | 25~50/4 | ||
| 5 | 63~125 | ||
| 6 | Зарыть | 275 | |
| Фазировать | 275 | ||
| Через открытый DS | 315 | ||
| 7 | 650 | ||
| Фазировать | 650 | ||
| Через открытый DS | 750 | ||
| 8 | Уровень боковой нагрузки | 1500 | |
| Уровень вертикальной нагрузки | 1000 | ||
| Вертикальная сила | 1000 | ||
| 11 | 200 | ||
| 12 | AC220; DC110, 220 | ||
| 13 |
AC220, 380; DC110, 220
|
||
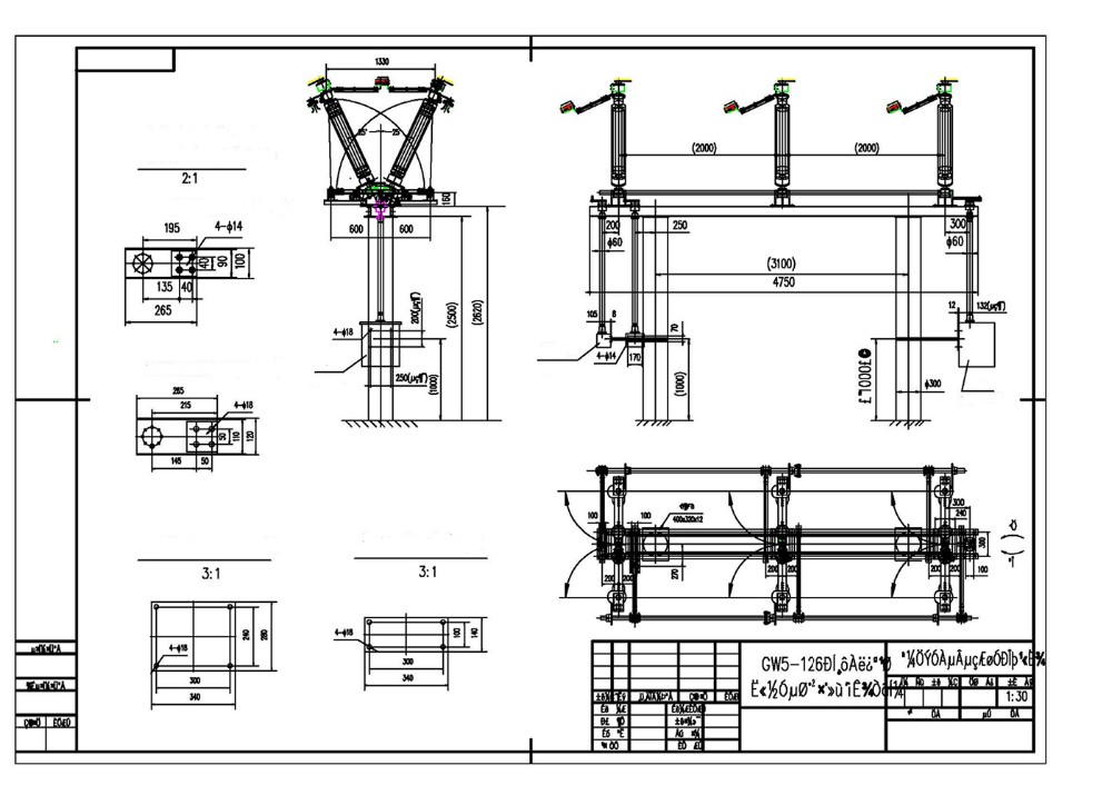
Чертеж:

Другой:
Yongde держит качественную политику быть „техническим предшественником, высшую в качестве, превосходстве клиентов, и новаторском развивать“, так как наши продукты и услуга успешно удовлетворяли наши потребители. Мы друзья и клиенты от дома и за рубежом контактировать для обменов и корпораций. Мы также приветствуем обратные связи от наших обществ пользователей.