Высоковольтный на открытом воздухе переключатель 252KV разобщителя амортизатора
Основное описание:
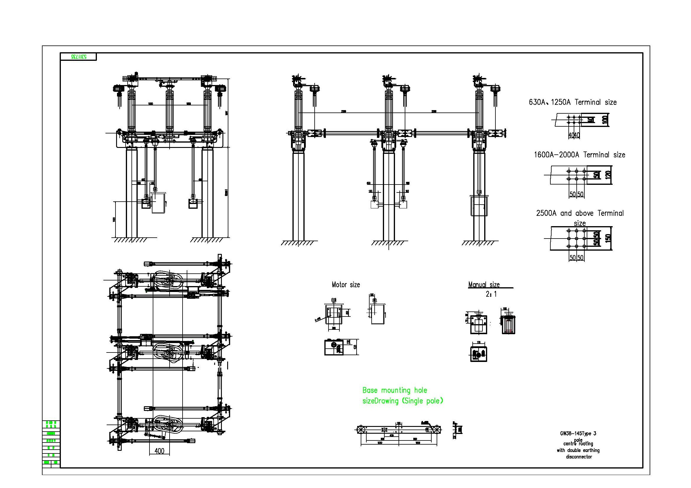
GW38-40.5~252/630~4000 тип переключатель разобщителя хорош для уменьшения расстояния и станции аранжируя, особенно для на открытом воздухе станции.
Из-за само-вращения электрической штанги и переключая структуры и иметь само-запирать функцию, оно имеет сильное свойство сопротивления представления мотора. Между тем, он может сопротивляться мотору, давлению ветра, землетрясению и другой внешней силе.
Технический параметр:
1. разобщитель напряжения тока 252kv
2. Мы имеем многолетний опыт 20
3. Самая лучшая цена & самое лучшее качество
| Таблица параметра | |||||
| Никакой | Детали | Технический параметр | |||
| 1 | Расклассифицированное напряжение тока kV | 72,5 | 126 | 252 | |
| 2 | Номинальное напряжение тока системы kV | 66 | 110 | 220 | |
| 3 | Расклассифицированное настоящее a | 630; 1250; 1600; 2000; 2500; 3150; 4000 | |||
| 4 | Расклассифицированный короткий период времени выдерживает течение и время kA/s | 25~50/4 | |||
| 5 | Расклассифицированный пик выдерживает настоящий kA | 63~125 | |||
| 6 | частота силы 1min выдерживает напряжение тока (действующее значение) kV | Зарыть | 140 | 230 | 460 |
| Фазировать | 140 | 2300 | 460 | ||
| Через изолировать DS | 180 | 230+70 | 460+145 | ||
| 7 | Напряжение тока wishstand импульса молнии (максимальное значение) KV | Зарыть | 325 | 550 | 1050 |
| Фазировать | 325 | 500 | 1050 | ||
| Через изолировать DS | 385 | 550+100 | 1050+150 | ||
| 8 | Расклассифицированная механическая терминальная нагрузка n | Уровень боковой нагрузки | 750 | 1500 | 2000 |
| Уровень вертикальной нагрузки | 500 | 1000 | 1500 | ||
| Вертикаль | 750 | 1000 | 1250 | ||
| 9 | Минимальное расстояние изоляции против земного mm | 600 | 1000 | 2000 | |
| 10 | N. m момента максимального человека оперативное | 200 | |||
| 11 | Управляющее напряжение v работая механизма привода мотора | AC220,380; DC110,220 | |||
| 12 | Напряжение тока v мотора работая механизма привода мотора | AC220,380; DC110,220 | |||
