Тип подстанции отключая переключатели GW17-252
Описание:
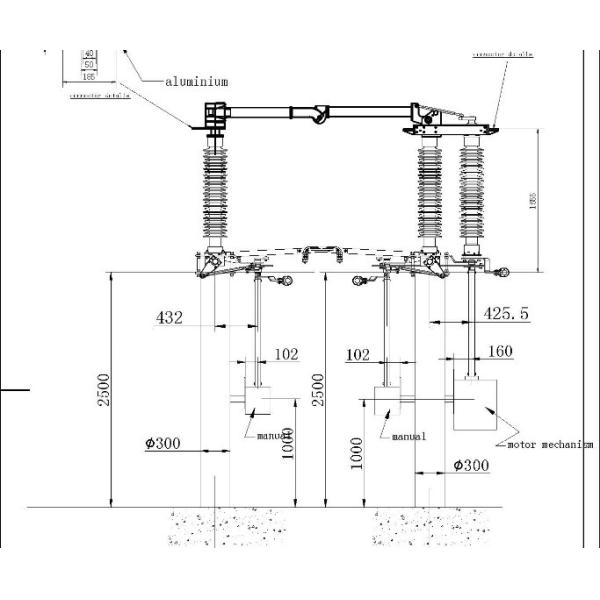
Переключатель разобщителя серии GW17-252
Оно имеет свойство компактной текстуры, выдвинутого, чистогося возникновения, красоты, надежного свойства, экономического. После задействовать, вертикальный контакт не займет космос, особенно приспосабливается к месту что входя в линия и линия вертикальная различная высота выхода.
Терминальный блок и проводная штанга сделаны разделом сплава отливки алюминиевым и алюминиевых сплава, имеющ преимущество высоко-интенсивности, хороший пропускать и хорошую анти--корозию.
Приспособьтесь к пути места различному кладя: Одна линия кладя, 45° кладя, 135° кладя и так далее
В гальванической цепи, раздел структура комбинации сделанная починкой винта соединяя, имеющ хорошее свойство стабилизированный пропускать, высокую надежность, простой путь изменения и удобный добавляя путь тома.
В гальванической цепи, контакт и палец сделаны краном T2Y чистым медным соединяющая деталь которого покрыта серебром 30μ m.
Весна пальца сделана нержавеющей сталью и свой дизайн скрывание внутренности и внешняя структура прессы которая удобна для испытывать и изменения
Полностью тяга в рычажной передаче и штанга соединять поставлены изготовителем, который удобен для нагружать, регулировать и испытывать.
Его можно поставить в целом над землей согласно требованию к потребителя.
Спецификации:
| Никакой | Деталь | Технический параметр | ||||||
| 1 | Расклассифицированное напряжение тока kV | 72,5 | 123 | 145 | 245 | |||
| 2 | Расклассифицированное настоящее a | 1250 1600 2000 2500 3150 4000 | ||||||
| 3 | Расклассифицированный короткий период времени выдерживает течение и время kA/s | 25~50/4 | ||||||
| 4 | Расклассифицированный пик выдерживает настоящий kA | 63~125 | ||||||
| 5 | частота силы 1min выдерживает напряжение тока (действующее значение) kV | Зарыть | 140 | 230 | 275 | 460 | ||
| Фазировать | 140 | 230 | 275 | 460 | ||||
| Через изолировать DS | 180 | 300 | 315 | 605 | ||||
| 6 | Напряжение тока wishstand импульса молнии (максимальное значение) kV |
Зарыть | 325 | 550 | 650 | 1050 | ||
| Фазировать | 325 | 550 | 650 | 1050 | ||||
| Через изолировать DS | 405 | 650 | 750 | 1200 | ||||
| 7 | Расклассифицированная механическая терминальная нагрузка n | Уровень боковой нагрузки | 750 | 1500 | 1500 | 2000 | ||
| Уровень вертикальной нагрузки | 500 | 1000 | 1000 | 1500 | ||||
| Вертикаль | 750 | 1000 | 1000 | 1250 | ||||
| 8 | Емкость и индуктивная способность (открытый и близкий) | Емкость настоящее a | 1 | |||||
| Индуктивное настоящее a | 0,5 | |||||||
| 9 | N. m момента максимального человека оперативное | 200 | ||||||
| 10 | Управляющее напряжение v работая механизма привода мотора | AC220; DC110, 220 | ||||||
| 11 | Напряжение тока v мотора работая механизма привода мотора | AC220, 380; DC110, 220 | ||||||
