WS-0770 к WS-42120 типу аксессуары Ploe глаза Clevis гнезда
Тип глаз WS clevis гнезда использован для соединения со стальной ногой, который подвергли ко дну шарика & в форме гнезд изолятора (щариковой головки). Согласно различным условиям & структуре использования, глаза clevis гнезда составлены одиночного типа серии & типа двойного ряда.
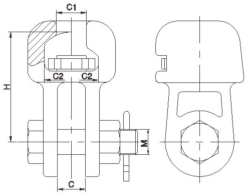
Тип глаз WS Clevis гнезда

| Национальный тип решетки | Но. 85 тип стандарта | Размер соединения | Размер (mm) | Номинальная нагрузка отказа (kn) | ||||
| C | C1 | C2 | M | H | ||||
| WS-0770 | WS-7 | 16 | 18 | 19,2 | 34,5 | 16 | 70 | 70 |
| WS-1085 | WS-10 | 16 | 20 | 19,2 | 34,5 | 18 | 85 | 100 |
| WS-1290 | 16 | 20 | 19,2 | 34,5 | 22 | 90 | 120 | |
| WS-12 | 16 | 24 | 19,2 | 34,5 | 22 | 85 | 120 | |
| WS-1695 | WS-16 | 20 | 22 | 23 | 42,5 | 24 | 95 | 160 |
| WS-20 | 24 | 30 | 27,5 | 51 | 27 | 100 | 200 | |
| WS-21100 | 20 | 24 | 23 | 42,5 | 24 | 100 | 210 | |
| WS-25100 | 24 | 28 | 27,5 | 51 | 27 | 100 | 250 | |
| WS-30 | 24 | 36 | 27,5 | 51 | 36 | 110 | 300 | |
| WS-32110 | 24 | 32 | 27,5 | 51 | 30 | 110 | 320 | |
| WS-42120 | 28 | 36 | 32 | 59 | 36 | 120 | 420 | |