Тип мотора передачи гидравлического мотора гидравлический БМРВ колеса для буровых установок
Введение
Отслеживайте (колесо) гидравлический мотор перемещения высокоскоростными гидравлическими моторами, тормозами, планетарной шестерней, группами клапана и другими компонентами. Для привода раковины, смогите сразу быть соединено с колесами привода колеса или следа, надежными, высокой эффективностью. Польза высокого дизайна подшипника сплющенного ролика подшипника, делая его полно оборудованное с экскаваторами на работе и поворачивая осевую силу и радиальную силу. Компактная текстура, красивое возникновение, главное представление, может быть сразу заменой для импортированных продуктов, широко используемой в буровых установках, не-выкапывая снаряжении, буровых установках утеса, буровых установках ДТХ, роторных буровых установках, следе кравлер роадхэадерс идя и кораблях рельса, проектирующ корабли и другое оборудование.
Характеристики
* предварительные приборы производства для набора шестерни Геролер, которые используют низкое давление запуска, обеспечивают ровные и надежные деятельность и высокую эффективность.
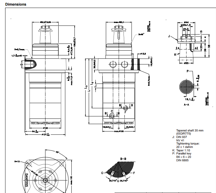
* вал выхода приспосабливается в подшипниках ролика иглы которые позволяют высокие осевые и радиальные силы. Консервная банка случая предлагает емкости высокого давления и высокого вращающего момента в широком применений.
* предварительный дизайн в высокоскоростной подаче распределения, которая может автоматически компенсировать в работать с высокообъемными эффективностью и длинной жизнью, предусматривает ровную и надежную деятельность.
* самый низкий тариф утечки, большинств точные методы времени. Коммутант поворачивает 6кс более быстро чем скорость вала. Он делает распределение в высокой точности уменьшает стоимость жизненного цикла, поддерживает высокообъемные эффективности и может побежать очень ровно на малой скорости, необходимо коробке передач.
| Тип | ОМЭР 125 | ОМЭР 160 | ОМЭР 200 | ОМЭР 230 | ОМЭР 250 | ОМЭР 300 | ОМЭР 350 | ОМЭР 375 | ОМЭР 475 | ОМЭР 540 | ОМЭР 750 | |
| Геометрическое Диспласемен (км3/возбуждают.) | 118 | 156 | 196 | 228 | 257 | 296 | 345 | 371 | 462 | 540 | 745 | |
| Макс.спед (рпм) | конт. | 360 | 375 | 330 | 290 | 290 | 250 | 220 | 200 | 160 | 140 | 100 |
| инт. | 490 | 470 | 425 | 365 | 350 | 315 | 270 | 240 | 195 | 170 | 120 | |
| Макс.торке (н•м) | конт. | 325 | 450 | 530 | 625 | 700 | 810 | 905 | 990 | 1085 | 980 | 1050 |
| инт. | 380 | 525 | 600 | 710 | 790 | 930 | 1035 | 1140 | 1180 | 1240 | 1180 | |
| пик | 450 | 590 | 750 | 870 | 980 | 1120 | 1285 | 1360 | 1260 | 1380 | 1370 | |
| Макс.оутпут (кВ) | конт. | 12 | 15 | 15,5 | 16 | 17,5 | 18 | 17,5 | 16,5 | 14,5 | 11,5 | 8 |
| инт. | 14 | 17,5 | 18 | 19 | 20 | 21 | 20 | 19 | 16,5 | 15 | 10 | |
| Максимальн Давление (MPa) | конт. | 20,5 | 20,5 | 20,5 | 20,5 | 20,5 | 20,5 | 20,5 | 20,5 | 17,5 | 14 | 10,5 |
| инт. | 24 | 24 | 24 | 24 | 24 | 24 | 24 | 24 | 19 | 17,5 | 12 | |
| пик | 27,6 | 27,6 | 27,6 | 27,6 | 27,6 | 27,6 | 27,6 | 27,6 | 20,5 | 20,5 | 14 | |
| Максимальная подача (Л/МИН) | конт. | 45 | 60 | 70 | 70 | 75 | 80 | 80 | 75 | 75 | 75 | 75 |
| инт. | 60 | 75 | 85 | 85 | 90 | 95 | 95 | 90 | 90 | 90 | 90 |

Применения:
Из-за своих подшипников иглы мотор идеален для трудных условий труда, например: Высокая радиальная нагрузка, частые начала/стопы, вибрации вала. Использованный для видов машин полюбите: Ролики дороги • Рабочие платформы • Кося машины • Минилоадерс • Метельщики • Вороты • Механические инструменты етк.