Выполненный на заказ на открытом воздухе шкаф телекоммуникаций 2 отсеков гальванизировал стальное IP55 14U
Список конфигурации
| Нет. | Деталь | Количество | Блок | Спецификации |
| 1 | На открытом воздухе шкаф 2 отсеков | 1 | Установите |
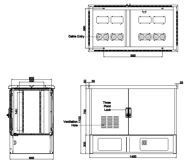
(1) внешний размер: W×D×H 1450×650×1100mm |
| 2 | Вентилятор | 4 | Установите | AC110V, 60Hz; 2 вентилятора для каждой двери |
| 3 | Пакет | 1 | Установите | Деревянный случай |
Условия труда:
Температура:
Работая температура: -20°C | 55°C
Температура хранения: -40°C | + 70°C
Температура перехода: -50°C | +70°C
Относительная влажность: 5% | 100%
Воздушное давление: 62kpa | 101kpa (подобное до 0m | высота 5000m)
Интенсивность солнечного излучения: × 1124 (1±5%) W/m2
Чертеж размера
Размер шкафа внешний: 1450×650×1100mm (W×D×H),
Размер шкафа внутренний: левый отсек 300×600×600mm (W×D×H)
правый отсек 600×600×600mm (W×D×H)




План шкафа





