, интегрированный шкаф телекоммуникационного оборудования, шкаф RRU, кондиционер компрессора DC48V, система мониторинга окружающей среды
Водоустойчивый на открытом воздухе парадный вход шкафа одного телекоммуникаций IP55
Описание водоустойчивого на открытом воздухе шкафа телекоммуникаций IP55
На открытом воздухе шкаф ET131722909021020 телекоммуникаций был конструирован для того чтобы расквартировать чувствительную радиотехническую аппаратуру для пользы в проектах связей (как спутниковый регулятор модема, дублирования модема, переключатель локальных сетей, маршрутизатор локальных сетей, etc.), транспорта и железнодорожной инфраструктуры включая SISS, СНГ, CCTV, сообщения, силу, сеть etc.
Технические параметры IP55 делают на открытом воздухе шкаф водостойким телекоммуникаций
| Конфигурация | Конфигурация | Технический параметр |
| Шкаф | Модель |
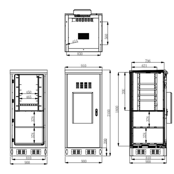
ET131722909021020 |
| Уровень защиты | IP55 | |
| Внешний размер |
H2100mm×W900mm×D900mm |
|
| Внутренний размер | шкаф 19 дюймов, 20U | |
| Материал | Гальванизированное стальное, одностеночный | |
| Изоляция | PEF | |
| Покрытие | Покрытие порошка полиэстера | |
| Цвет | RAL7035 | |
| Замок | замок пункта Анти--похищения 3 для на открытом воздухе шкафа (padlock поддержки) | |
| Шарнир | внутренний шарнир | |
| Варианты установки | установленный поляк | |
| Трасса кабеля | Кабель внутри и вне от дна шкафа | |
| Обслуживание | Один парадный вход, переднее обслуживание. | |
| Окружающая среда | Работая температура | -40℃~+55℃ (радиация +Solar) |
| Температура хранения | -40℃~+70℃ | |
| Работая влажность | 5%~95% (отсутствие конденсации) | |
| Работая высота | 米 0~4000 |
Чертеж:

вопросы и ответы
Q1.Do вы имеете любой предел MOQ для шкафа телекоммуникаций?
: Низкое MOQ, 1pc для проверки образца доступно.
Q2.What ваша оплата термины?
: Нормально наше условие оплаты 50% предварительное T/T, балансом перед пересылкой.
Q3.Are ваши продукты можно подгонять?
: Да, мы можем подгонять продукты согласно потребностям клиента.
Q4.Do вы предложить гарантию для продуктов?
: Да, мы предлагаем гарантию 1 года для наших продуктов. Если любая проблема случается в периоде гарантии, то мы ответим ваши технические вопросы в 24 часах, и удаленная видео- поддержка доступна.
Q5: Где применение?
: Наши продукты широко были использованы в много радиосвязей индустрий, как введенных информачи, крытых/на открытом воздухе, базовая станция, сталь, металлургия, petrification, автомобили и оборонная промышленность etc.