Водоустойчивый на открытом воздухекондиционер 1500wпарадного входадюймаодного шкафа 19u19 телекоммуникаций IP55
Анти--похищение 3 шкаф телекоммуникаций дюйма IP55 замка пункта 19U 19 водоустойчивый на открытом воздухе
Описание водоустойчивого на открытом воздухе шкафа телекоммуникаций IP55
На открытом воздухе шкаф ET132122808015019 телекоммуникаций был конструирован для того чтобы расквартировать чувствительную радиотехническую аппаратуру для пользы в проектах связей (как спутниковый регулятор модема, дублирования модема, переключатель локальных сетей, маршрутизатор локальных сетей, etc.), транспорта и железнодорожной инфраструктуры включая SISS, СНГ, CCTV, сообщения, силу, сеть etc.
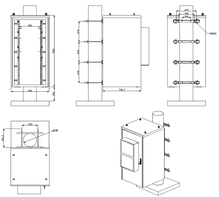
Часть ET132122808015019 верхняя включает рельс установки 19 ″ с космосом 19U, нижняя часть включает основание 200mm высокое для управления кабеля. Низкопробную высоту можно подгонять.
Пункты продажи и особенность водоустойчивого на открытом воздухе шкафа телекоммуникаций IP55
●Шкаф пылезащитн, sunproof и rainproof, который использовано в на открытом воздухе окружающей среде
●19 блоков шкафа (RU), стандарт 19" рельс
●Ранг IP: IP55
●Охлаждать шкафа: кондиционер 1500W
●Сверхмощная на открытом воздухе конструкция
●Передний доступ (задний доступ опционный)
●Высокая интеграция, компактная текстура, легкая установка и миграция на более поздней стадии
●система Анти--похищения трехочковая запирая, padlock поддержки
Технические параметры IP55 делают на открытом воздухе шкаф водостойким телекоммуникаций
| Конфигурация | Деталь | Технический параметр |
| Шкаф | Модель | ET132122808015019 |
| Внешний размер | H1500mm×W800mm×D800mm | |
| Внутренний размер | рельс 19U 19 дюймов с одним шкафом батареи слоя | |
| Материал |
Гальванизированная сталь, толщина 1.2mm, одностеночная. Толщина носить части: 2.0mm |
|
| Изоляция | PEF | |
| Покрытие | Покрытие порошка полиэстера | |
| Цвет | RAL7035 | |
| Замок | система Анти--похищения трехочковая запирая | |
| Шарнир | Внутренний шарнир | |
| Варианты установки | Установленный пол - | |
| Трасса кабеля | Кабель внутри и вне от дна шкафа | |
| Уровень защиты | IP55 | |
| Обслуживание | Один парадный вход | |
| Охлаждать | Кондиционер | 1500W 220VAC 60HZ |
| Электрическая система | 48V 90A |
30 модулей, 1 контролируя модуль входной сигнал: 63A/2P*1 Выход: 50A/2P*6 |
| Датчики | Датчик двери, датчик воды, температура и датчик влажности, датчик дыма | |
| Блок контроля окружающей среды |
установка 19 дюймов, 1U высокое, 48VDC ввод напряжения, порт связи: SNMP пассивный переключая входной сигнал значения 9-way, входной сигнал значения переключения 6 путей активный, выход реле 6 путей. |
|
| Другие | Лампа СИД 48VDC для освещения | |
| Окружающая среда | Работая температура | -40℃~+55℃ (+Solar Radiatio) |
| Температура хранения | -40℃~+70℃ | |
| Работая влажность | 5%~95% (отсутствие конденсации) | |
| Работая высота | 0~4000 метров | |
Изображение продукта:



Диаграмма:

вопросы и ответы
Q1.Do вы имеете любой предел MOQ для шкафа телекоммуникаций?
: Низкое MOQ, 1pc для проверки образца доступно.
Q2.What ваша оплата термины?
: Нормально наше условие оплаты 50% предварительное T/T, балансом перед пересылкой.
Q3.Are ваши продукты можно подгонять?
: Да, мы можем подгонять продукты согласно потребностям клиента.
Q4.Do вы предложить гарантию для продуктов?
: Да, мы предлагаем гарантию 1 года для наших продуктов. Если любая проблема случается в периоде гарантии, то мы ответим ваши технические вопросы в 24 часах, и удаленная видео- поддержка доступна.
Q5: Где применение?
: Наши продукты широко были использованы в много радиосвязей индустрий, как введенных информачи, крытых/на открытом воздухе, базовая станция, сталь, металлургия, petrification, автомобили и оборонная промышленность etc.