Пядь 35m l тип рельс крана на козлах 50T установила кран набережной
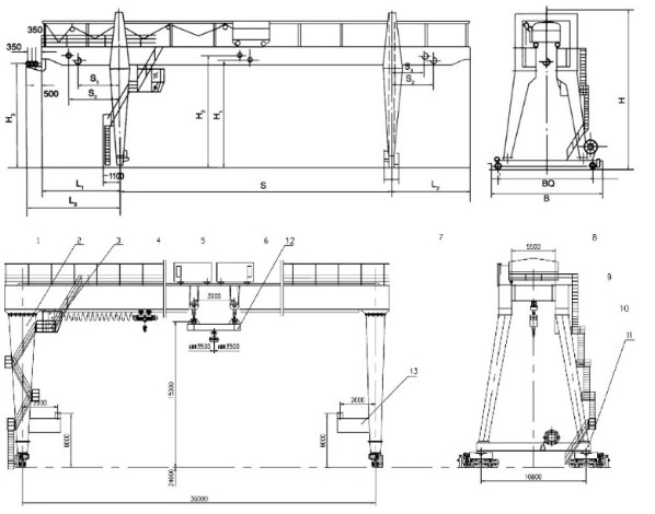
L тип кран на козлах поддержанный на том основании след 2 ногами моста. В структуре дверной рамой, механизмом деятельности тележки, поднимаясь вагонеткой и электрическими деталями. Некоторые краны на козлах только имеют ногу на одной стороне, другой стороне завода или поддержке козл в деятельности, известной как кран полу-портала. Часть дверной рамы крана на козлах моста (включая луч и луч конца), ног, лучей и других частей ближнего света фар.
L тип превосходство крана на козлах
1. Дверная рама принимает структуру в форме коробк двойного луча сваривая, которая увеличивает рабочую зону и удобна для транспорта, установки и обслуживания;
2. Вагонетка проводная с в форме особенн стальными рельсами и гибкими кабелями;
3. стандартизация, сериализация и обобщение частей и компонентов;
4. Электропитание крана на козлах имеет линию тип типа вьюрка кабеля и сползать контакта, которая может быть выбрана потребителями;
5. Диспетчерский пункт имеет широкий взгляд, гибкую операцию по контролю и удобную работу. Вентиляторы, кондиционеры, рации, etc.
Смогите также быть добавлено согласно требованиям;.
Дизайн структуры продукта
1. механизм деятельности крана
Оно главным образом составлено ближнего света фар и вагонетки, среди которого вагонетка составлена активной группы колеса и группы управляемого колеса, и работая механизм включает группу мотора, редуктора, шестерни и колеса и другие компоненты.
2. Нога
Используя сталь раздела как материал, и после этого сваренный в структуру клетки, нижний конец и соединение ближнего света фар, верхний конец и болты луча через соединение фланца.
3. Комната кабины
Рамка сделана из стали раздела, раковина сварена на рамке с тонкой стальной пластиной.
Кабина водителя загерметизирована с ломанными линиями, и электроприборы, шкафы распределения силы и цепи механизма регулирования вообще расположены в комнате водителя.
4. Главный прогон
Сталь раздела сварена к стальной пластине, вообще свариваемой в треугольник ферменной конструкции, на луче, и рельсу вагонетки идущему.
5. механизм деятельности вагонетки
Главные компоненты подобны идущему механизму большого автомобиля.
Мотор управляется редуктором, и небольшая шестерня на редукторе перенесена к большой шестерне, для того чтобы осуществить поездку туда и обратно небольшого автомобиля.
6. поднимаясь механизм
Устанавливает в рамку вагонетки, через глухой блок подъема и соответствовать, передвижной шкив или крюк для того чтобы достигнуть поднимаясь движения.

Технические параметры

| Поднимаясь емкость | T | 10 | 16 | 20/10 | 32/10 | 36/16 | 50/10 | |
| Пядь | m | 22~35m | ||||||
| Скорость | Главный подниматься крюка | m/min | 8,5 | 7,9 | 7,2 | 7,5 | 7,8 | 6 |
| Вспомогательн Крюк Lifting | 10,4 | 10,4 | 10,5 | 10,4 | ||||
| Путешествовать вагонетки | 43,8 | 44,5 | 44,5 | 41,9 | 41,9 | 38,13 | ||
| Путешествовать крана | 37.6/40 | 38/36 | 38/36 | 40 | 40/38 | 38 | ||
| Рабочая модель | Шкентель с кабелем/дистанционным управлением/кабиной | |||||||
| Работая обязанность | A5 | |||||||
| Электропитание | Трехфазное A.C. 380V, 50Hz | |||||||
| Мы можем конструировать и изготовить все виды нештатного продукта согласно вашему требованию | ||||||||