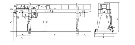
тип погрузо-разгрузочная работа коробки крана на козлах прогона двойника 25t/5t двора доставки
Двойной кран на козлах прогона широко использован для того чтобы сделать общие поднимаясь и разгружая работы. Этот вид крана составлен моста, ног поддержки, крана путешествуя орган, вагонетка, электрическое оборудование, сильный поднимаясь ворот. Рамка принимает типа коробк сваривая механизм. Сила поставлена кабелем или проводом скольжения. различный двойник емкости испускают лучи краны на козлах для вашего выбора согласно вашей различной пользе.
Двойное превосходство крана на козлах прогона
1. Структура двойного луча коробки сваривая принята для увеличения рабочей зоны и для того чтобы облегчить транспорт, установку и обслуживание.
2. Вагонетка принимает прибор особенного кабеля рельса проводной.
3. Разделяет стандартизацию, seriation и обобщение.
4. 2 типа электропитания крана: линия тип типа тросового ролика (разделенного в левые и правые концы) и сползать контакта
(разделенный в левые и правые концы), который может быть выбрано потребителями.
Параметры двойного крана на козлах прогона технические

| Модель | Двойной кран на козлах прогона | Примечание |
| Емкость крана | 25t/5t | |
| Пядь | 30m+5m | Внешнее консольное 5meters |
| Главная поднимаясь высота | 13.5m | |
| Вспомогательн Lifting Высота | 14m | |
| Крышка вагонетки | Дожд-защитная крышка включила | |
| Главная поднимаясь скорость | 7.7m/min | |
| Вспомогательн Lifting Скорость | 8.5m/min | |
| Перекрестная скорость путешествовать | 37.2m/min | |
| Длинная скорость путешествовать | 30m/min | |
| Метод контроля | Кабина с регулятором кнюппеля | |
| Управляющее напряжение | AC 110V | |
| Уровень предохранения от мотора | IP55 | |
| Ранг изоляции мотора | F | |
| Электропитание | 380V 50HZ 3P | |
| Работая температура | -20℃~50℃ | |
| Класс электрической изоляции | H | - |
| Рабочий класс | M7 | 24 часа работать |
| Максимальная нагрузка колеса | 195KN | |
| Полная сила | 105.5KW | |
| Собственная личность - вес | 85000kg |
Параметры в изображении для ссылки только и могут быть подгоняны согласно требованиям к клиента.
Применение продукта
(1) высокое использование места
(2) большой объем работы
(3) оно имеет широкий диапазон приспособлений
(4) оно имеет сильную всеобщность,
(5) вообще использованный в гаван дворе, etc

Введение компании
CO. индустрии безмолвия Хэнаня, Ltd фокусирует на поднимаясь разрешениях для клиентов. Мы обеспечиваем дизайн, продукцию, и обслуживание различного поднимаясь оборудования, которое покрывает электрические подъем веревочки провода, таль с цепью, кран кливера, мостовой кран, кран на козлах, etc.
Под краном клиента принципа во-первых, современным люди всегда обеспечивают клиентов с первоклассными продуктами и превосходным обслуживанием. Люди КРАНА БЕЗМОЛВИЯ следовать строгой системой ПРОВЕРКИ КАЧЕСТВА которая обеспечивает совершенство каждого поднимаясь оборудования.
Наши продукты совершенно проходили ISO9001, CE, GS и другие сертификаты качественной системы. Большое спасибо к нашим изделиям высокого качества и выдающему обслуживанию клиента.
КРАН БЕЗМОЛВИЯ зарабатывал репутацию от наших клиентов и приобрел глобальную сеть продаж достигая Бразилию, Индию, филиппинское, Украина, Аргентина, испанское, Малайзия и другие 30 стран.
С обязательством удолетворения потребностей клиента, мы рассчитываем расширить и углубить сотрудничество и сообщение со всеми друзьями во всем мире.
Упаковка и доставка
